407-990-2746
Menu

8613 Leeland Archer Boulevard, Orlando, FL

NEXT
PREV
$319,900

($264/sqft)

List Status: Pending
8613 Leeland Archer Boulevard
Orlando, FL 32836


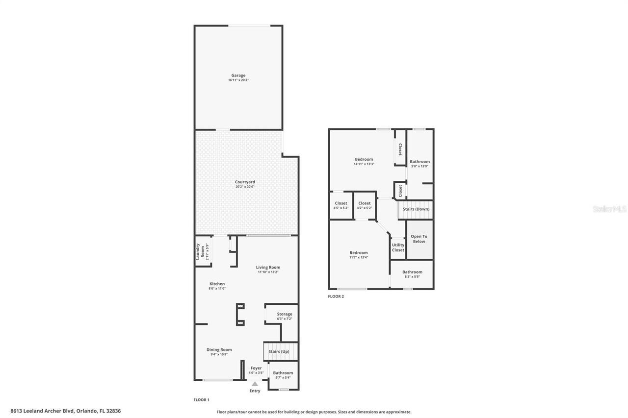
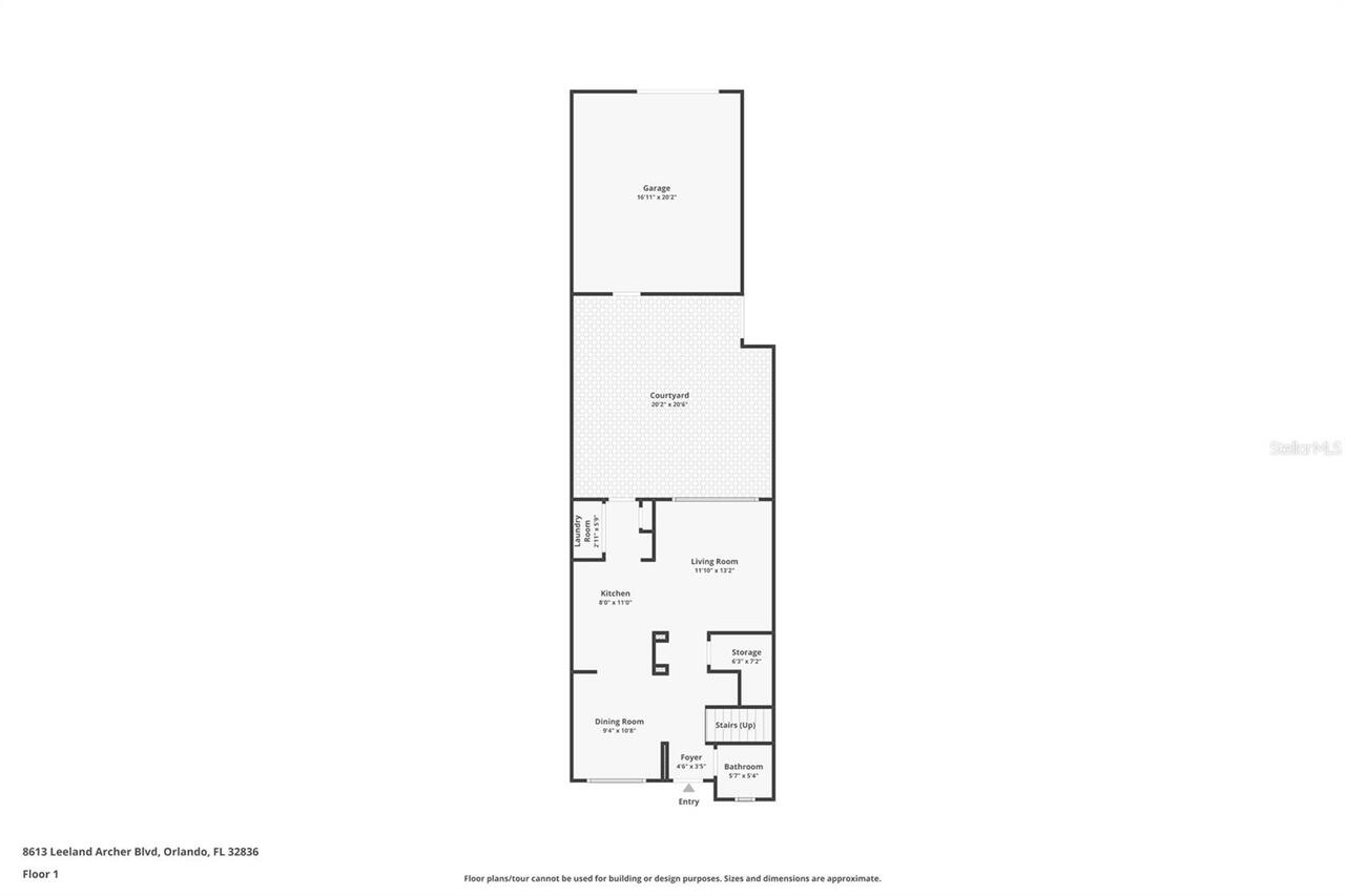
2 beds
2 baths
1212 living sqft
Top Features
  • Subdivision: Newbury Park
  • Built in  2007
  • Townhouse
Description
Under contract-accepting backup offers. Location is Unbeatable. Price is Unthinkable. Welcome to this impeccably maintained townhome in the highly sought-after Horizon West area, perfectly positioned for those who want the quintessential Central Florida lifestyle. Just a stone’s throw from the Magic Kingdom and within easy walking distance to the Lakeside Village Shopping Center—home to a variety of premier dining, shopping, and everyday conveniences—this home offers a level of accessibility that is second to none. Inside, the home feels warm and welcoming with an expansive, light-filled living area on the main floor. The interior features durable laminate and tile flooring throughout, offering a clean, well-maintained "canvas" ready for your personal touch. Upstairs, you’ll find a dual-suite layout featuring two generous bedrooms, each with its own private bathroom—ideal for privacy and convenience. Key updates and features include: Peace of Mind: Newer A/C system and a well-managed HOA that handles exterior maintenance. Storage & Parking: An oversized 1-car garage provides plenty of room for vehicles plus additional storage space. Prime Connectivity: Unmatched access to I-4, SR-535, and the charm of Downtown Windermere. Whether you are looking for a low-maintenance primary residence or a high-performing investment property in one of Orlando’s fastest-growing corridors, this home represents an incredible opportunity to own in a premier location at a price point that is increasingly rare. Newbury Park is a well-established enclave of single-family homes and townhomes, just off Winter Garden–Vineland Road. Residents enjoy: Community pool with clubhouse and playground. Centrally located and zoned for top-rated schools—Castleview Elementary, Horizon West Middle and Windermere High this home offers both lifestyle and convenience.. Come see why this isn’t just a house—it’s a place that truly feels like home. Watch the tour here: https://youtu.be/TWC0wt91tZY
Property Details
Additional Information
Additional Lease Restrictions
Please contact with HOA
Additional Parcels YN
false
Alternate Key Folio Num
282331586100820
Appliances
Dishwasher, Disposal, Electric Water Heater, Microwave, Range, Refrigerator
Association Email
colleen@hmi-c1a.com
Association Fee
796
Association Fee Frequency
Quarterly
Association Fee Includes
Pool
Association Fee Requirement
Required
Association URL
newburyparkhoa.net
Association YN
true
Attached Garage YN
false
Available For Lease YN
1
Bathrooms Total Integer
3
Building Area Source
Public Records
Building Area Total
1212
Building Area Total Srch SqM
112.60
Building Area Units
Square Feet
Calculated List Price By Calculated SqFt
263.94
Carport YN
false
Community Features
Clubhouse, Park, Playground, Pool, Sidewalks
Construction Materials
Block
Cooling
Central Air
Country
US
Cumulative Days On Market
57
Current Price
319900.00
Direction Faces
Southwest
Elementary School
Sunset Park Elem
Expected Closing Date
2026-03-27T00:00:00.000
Exterior Features
Courtyard, Sidewalk
Fireplace YN
false
Flood Zone Code
X
Flood Zone Date
2009-09-25
Flood Zone Panel
12095C0385F
Flooring
Ceramic Tile, Laminate
Foundation Details
Slab
Furnished
Furnished
Garage Spaces
1
Garage YN
true
Heating
Central
High School
Windermere High School
Interior Features
PrimaryBedroom Upstairs, Thermostat
Internet Address Display YN
true
Internet Automated Valuation Display YN
true
Internet Consumer Comment YN
true
Internet Entire Listing Display YN
true
Laundry Features
Inside, Laundry Closet
Lease Restrictions YN
1
Levels
Two
List AOR
Orlando Regional
Living Area Meters
112.60
Living Area Source
Public Records
Living Area Units
Square Feet
Lot Size Acres
0.06
Lot Size Square Feet
2560
Lot Size Square Meters
238
Middle Or Junior School
Horizon West Middle School
Minimum Lease
8-12 Months
Modification Timestamp
2026-03-23T16:22:09.215Z
Monthly HOA Amount
265.33
New Construction YN
false
Occupant Type
Vacant
Ownership
Fee Simple
Parcel Number
31-23-28-5861-00-820
Pet Restrictions
Please contact with HOA
Pets Allowed
Cats OK, Dogs OK
Pool Private YN
false
Postal Code Plus 4
8835
Previous List Price
309900
Price Change Timestamp
2026-02-23T21:46:06.000Z
Public Survey Range
28
Public Survey Section
31
Purchase Contract Date
2026-03-03
RATIO Current Price By Calculated SqFt
263.94
Road Responsibility
Public Maintained Road
Road Surface Type
Asphalt
Roof
Shingle
Room Count
6
Senior Community YN
false
Sewer
Public Sewer
Showing Requirements
Sentri Lock Box, ShowingTime
Status Change Timestamp
2026-03-03T23:20:32.000Z
Stories Total
2
Tax Annual Amount
4988.79
Tax Block
00
Tax Book Number
64-52
Tax Legal Description
NEWBURY PARK 64/52 LOT 82
Tax Lot
82
Tax Year
2025
Total Acreage
0 to less than 1/4
Total Annual Fees
3184.00
Total Monthly Fees
265.33
Township
23
Universal Property Id
US-12095-N-312328586100820-R-N
Unparsed Address
8613 LEELAND ARCHER BLVD
Utilities
Cable Available, Electricity Available, Water Available
Water Source
Public
Waterfront YN
false
Zoning
P-D
Neighborhood Map
Popup

Property Photos
Listing Photo
Listing Photo
Listing Photo
Listing Photo
Listing Photo
Listing Photo
Listing Photo
Listing Photo
Listing Photo
Listing Photo
Listing Photo
Listing Photo
Listing Photo
Listing Photo
Listing Photo
Listing Photo
Listing Photo
Listing Photo
Listing Photo
Listing Photo
Listing Photo
Listing Photo
Listing Photo
Listing Photo
Listing Photo
Listing Photo
Listing Photo
Listing Photo
Listing Photo
Listing Photo
Listing Photo
Listing Photo
Listing Photo
Listing Photo
Listing Photo
Listing Photo
Listing Photo
Listing Photo
Listing Photo
Listing Photo
Listing Photo
Listing Photo
Listing Photo
Listing Photo
Listing Photo
Listing Photo
Listing Photo
Listing Photo
Listing Photo
Listing Photo

MLS #MFRO6370160 Listing courtesy of Exp Realty Llc provided by Stellar MLS.

Similar Listings

$289,000
12308 Shady Spring Way
Orlando
2BR/2BA
| Active
$289,000
8855 Villa View Circle
Orlando
2BR/2BA
| Active
$289,000
7383 Universal Blvd
Orlando
2BR/2BA
| Active
$289,000
13427 Blue Heron Beach Drive
Orlando
2BR/2BA
| Pending



All listing information is deemed reliable but not guaranteed and should be independently verified through personal inspection by appropriate professionals. Listings displayed on this website may be subject to prior sale or removal from sale; availability of any listing should always be independent verified. Listing information is provided for consumer personal, non-commercial use, solely to identify potential properties for potential purchase; all other use is strictly prohibited and may violate relevant federal and state law. The source of the listing data is as follows: Stellar MLS (updated 3/23/26 4:23 PM) |

Listing Search



Translate Tool

Featured Listings
Orlando Real Estate
$425,000
2 BED
2 BATH
Stunning Lake, Pool & SeaWorld Fireworks Views! Discover this beautifully remodeled, fully furnished 2-bedroom, 2-bathro... Read More
Orlando Real Estate
$715,000
3 BED
2 BATH
Golf Course Home in the highly sought-after, guard-gated Orange Tree subdivision. This exceptional 3-bedroom, 2-bathroom... Read More
Orlando Real Estate
$530,000
3 BED
2 BATH
One or more photo(s) has been virtually staged. Welcome Home to Granada Villas! Highly desired location within Dr. Phill... Read More
Orlando Real Estate
$201,000
1 BED
1 BATH
Turnkey Short-Term Rental Investment in Prime Orlando Location! Beautifully renovated 1-bedroom studio condohotel locate... Read More
Orlando Real Estate
$1,100,000
5 BED
5 BATH
Step into a world of elegance at 7689 Toscana Boulevard in Doctor Phillips. This stylish and modern residence, located w... Read More
Orlando Real Estate
$575,000
3 BED
2 BATH
Experience the ultimate top-floor retreat at Vista Cay Resort, Orlando’s premier gated destination! This spacious, fully... Read More
Orlando Real Estate
$319,900
2 BED
2 BATH
Under contract-accepting backup offers. Location is Unbeatable. Price is Unthinkable. Welcome to this impeccably maintai... Read More
Orlando Real Estate
$304,900
3 BED
2 BATH
Beautiful home in a great neighborhood. This property was fully updated within the last two years, featuring modern appl... Read More
Orlando Real Estate
$329,998
3 BED
2 BATH
LOCATION, LOCATION, LOCATION! Welcome to this beautifully remodeled second-floor condo located in the gated Sanctuary at... Read More
Orlando Real Estate
$615,000
4 BED
2 BATH
This is the pool home you’ve been waiting for! Completely renovated and incredibly maintained, 4-bedroom split floor pla... Read More
Real Estate News
  • Coming soon
Contact Kevin Strawter

Wendy Morris LLC

Licensed in the State of Florida
BK 3146762
16797 Broadwater Avenue
Winter Garden, Florida 34787

Your privacy is our utmost concern. We will never sell your personal information. Privacy Policy
©2026 drphillips.info - all rights reserved. | Site Map