407-990-2746
Menu

11963 Bentry Street, Orlando, FL

NEXT
PREV
$525,000

($189/sqft)

List Status: Active
11963 Bentry Street
Orlando, FL 32824


5 beds
2 baths
2781 living sqft
Top Features
  • Subdivision: Wetherbee Lakes Sub
  • Built in  2003
  • Single Family Residence
Description
Property Details
Additional Information
Additional Lease Restrictions
PLEASE VERIFY WITH HOA
Additional Parcels YN
false
Additional Rooms
Inside Utility
Alternate Key Folio Num
302418887401430
Appliances
Cooktop, Dishwasher, Electric Water Heater, Microwave, Refrigerator
Approval Process
PLEASE VERIFY WITH HOA
Association Email
abigail@hoaemt.com
Association Fee
492
Association Fee Frequency
Annually
Association Fee Requirement
Required
Association URL
www.HOAEMT.com
Association YN
true
Attached Garage YN
true
Available For Lease YN
1
Bathrooms Total Integer
3
Building Area Source
Public Records
Building Area Total
3314
Building Area Total Srch SqM
307.88
Building Area Units
Square Feet
Calculated List Price By Calculated SqFt
188.78
Carport YN
false
Construction Materials
Block, Stucco
Cooling
Central Air
Country
US
Cumulative Days On Market
55
Current Price
525000.00
Direction Faces
East
Elementary School
Wetherbee Elementary School
Exterior Features
Sliding Doors
Fireplace YN
false
Flood Zone Code
X
Flood Zone Date
2009-09-25
Flood Zone Panel
12095C0440F
Flooring
Luxury Vinyl, Tile
Foundation Details
Slab
Furnished
Unfurnished
Garage Spaces
2
Garage YN
true
Heating
Central
High School
Cypress Creek High
Interior Features
Ceiling Fans(s), PrimaryBedroom Upstairs, Solid Wood Cabinets, Stone Counters, Thermostat, Vaulted Ceiling(s), Walk-In Closet(s)
Internet Address Display YN
true
Internet Automated Valuation Display YN
false
Internet Consumer Comment YN
true
Internet Entire Listing Display YN
true
Laundry Features
Laundry Room
Lease Restrictions YN
1
Levels
Multi/Split
List AOR
Orlando Regional
Living Area Meters
258.36
Living Area Source
Public Records
Living Area Units
Square Feet
Lot Size Acres
0.17
Lot Size Square Feet
7287
Lot Size Square Meters
677
Middle Or Junior School
South Creek Middle
Minimum Lease
7 Months
Modification Timestamp
2025-11-10T20:15:09.166Z
Monthly HOA Amount
41.00
New Construction YN
false
Occupant Type
Vacant
Ownership
Fee Simple
Parcel Number
18-24-30-8874-01-430
Pets Allowed
Yes
Pool Private YN
false
Postal Code Plus 4
4414
Previous List Price
549900
Price Change Timestamp
2025-10-08T00:53:17.000Z
Public Remarks
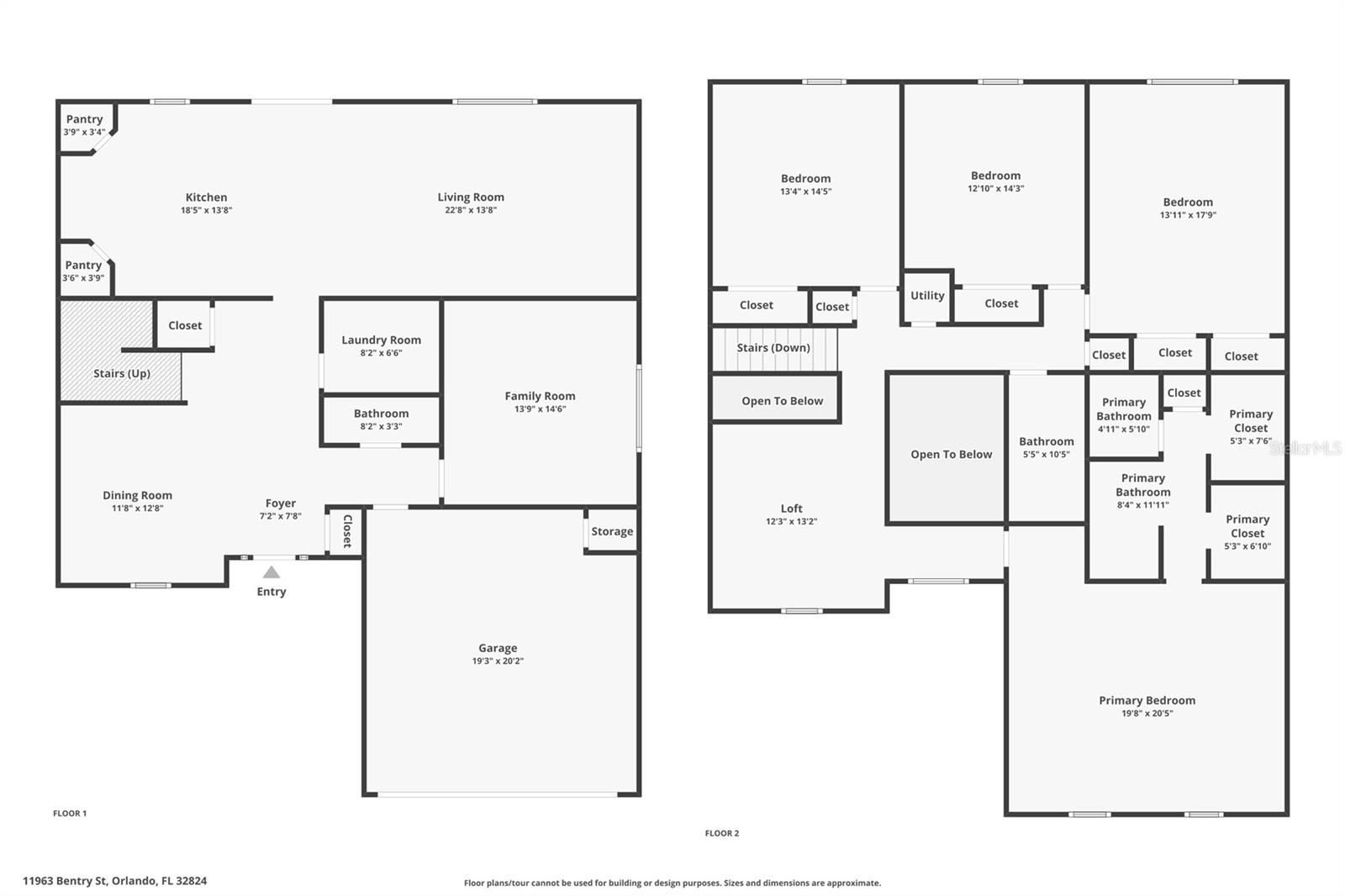
Step into over 2, 800 square feet of beautifully refreshed living space in this spacious 5-bedroom, 3.5-bath home featuring soaring ceilings, abundant natural light, and multiple living and dining areas designed for modern family living. The updated kitchen is the heart of the home, showcasing white shaker cabinets, granite countertops, stainless steel appliances, and a large island that opens seamlessly to the family room, perfect for entertaining or everyday connection. Downstairs offers porcelain tile flooring, a convenient half bath, and a flexible space that can serve as a guest room, home office, or additional living area, giving you options to fit your lifestyle. Upstairs, enjoy a roomy loft, an oversized primary suite with dual walk-in closets and a refreshed spa-style bath, plus three additional bedrooms and a full bath. Renovated in 2025, this home also features new flooring throughout, fresh interior and exterior paint, updated lighting and fixtures, and a new roof in 2024 for added peace of mind. A private backyard with no rear neighbors and a serene conservation view provides the perfect place to relax or entertain outdoors. Ideally located near Lake Nona, Orlando International Airport, shopping, dining, and major highways, this home combines modern updates, flexible space, and a convenient location in one of South Orlando’s most desirable communities. Schedule your private showing today and see why Wetherbee Lakes is the perfect place to call home.
Public Survey Range
30
Public Survey Section
18
RATIO Current Price By Calculated SqFt
188.78
Realtor Info
As-Is, Brochure Available, Docs Available, Floor Plan Available, Sign
Road Surface Type
Asphalt
Roof
Shingle
Room Count
12
Senior Community YN
false
Sewer
Public Sewer
Showing Requirements
Combination Lock Box
Status Change Timestamp
2025-09-17T02:46:57.000Z
Stories Total
2
Tax Annual Amount
6402.42
Tax Block
1
Tax Book Number
49/57
Tax Legal Description
WETHERBEE LAKES SUB PH 2 49/57 LOT 143
Tax Lot
143
Tax Year
2024
Total Acreage
0 to less than 1/4
Total Annual Fees
492.00
Total Monthly Fees
41.00
Township
24
Universal Property Id
US-12095-N-182430887401430-R-N
Unparsed Address
11963 BENTRY ST
Utilities
Cable Connected, Electricity Connected, Sewer Connected
Water Source
Public
Waterfront YN
false
Zoning
P-D
Neighborhood Map
Popup

Property Photos
Listing Photo
Listing Photo
Listing Photo
Listing Photo
Listing Photo
Listing Photo
Listing Photo
Listing Photo
Listing Photo
Listing Photo
Listing Photo
Listing Photo
Listing Photo
Listing Photo
Listing Photo
Listing Photo
Listing Photo
Listing Photo
Listing Photo
Listing Photo
Listing Photo
Listing Photo
Listing Photo
Listing Photo
Listing Photo
Listing Photo
Listing Photo
Listing Photo
Listing Photo
Listing Photo
Listing Photo
Listing Photo
Listing Photo
Listing Photo
Listing Photo
Listing Photo
Listing Photo
Listing Photo
Listing Photo
Listing Photo
Listing Photo
Listing Photo
Listing Photo
Listing Photo
Listing Photo
Listing Photo
Listing Photo
Listing Photo
Listing Photo
Listing Photo
Listing Photo
Listing Photo
Listing Photo
Listing Photo
Listing Photo
Listing Photo
Listing Photo
Listing Photo
Listing Photo
Listing Photo
Listing Photo
Listing Photo
Listing Photo
Listing Photo
Listing Photo
Listing Photo
Listing Photo
Listing Photo
Listing Photo
Listing Photo
Listing Photo
Listing Photo
Listing Photo
Listing Photo
Listing Photo
Listing Photo
Listing Photo
Listing Photo
Listing Photo
Listing Photo
Listing Photo
Listing Photo
Listing Photo
Listing Photo
Listing Photo
Listing Photo
Listing Photo
Listing Photo
Listing Photo
Listing Photo
Listing Photo
Listing Photo
Listing Photo
Listing Photo
Listing Photo
Listing Photo
Listing Photo
Listing Photo
Listing Photo
Listing Photo
Listing Photo
Listing Photo
Listing Photo
Listing Photo
Listing Photo
Listing Photo
Listing Photo
Listing Photo
Listing Photo
Listing Photo
Listing Photo
Listing Photo
Listing Photo
Listing Photo
Listing Photo
Listing Photo
Listing Photo
Listing Photo
Listing Photo
Listing Photo
Listing Photo
Listing Photo
Listing Photo
Listing Photo
Listing Photo
Listing Photo
Listing Photo
Listing Photo
Listing Photo
Listing Photo
Listing Photo
Listing Photo
Listing Photo
Listing Photo
Listing Photo
Listing Photo
Listing Photo
Listing Photo
Listing Photo
Listing Photo
Listing Photo
Listing Photo
Listing Photo
Listing Photo
Listing Photo
Listing Photo
Listing Photo
Listing Photo
Listing Photo
Listing Photo
Listing Photo
Listing Photo
Listing Photo
Listing Photo
Listing Photo
Listing Photo
Listing Photo
Listing Photo
Listing Photo
Listing Photo

MLS #MFRO6344880 Listing courtesy of Didomenico Realty Group provided by Stellar MLS.

Similar Listings

$475,000
12328 Bronson Way
Orlando
5BR/2BA
| Active
$485,000
14324 Fieldstone Lake Way
Orlando
5BR/2BA
| Pending
$498,900
1518 Nestlewood Trail
Orlando
5BR/2BA
| Active
$499,800
1892 Hammock Moss Drive
Orlando
5BR/2BA
| Active



All listing information is deemed reliable but not guaranteed and should be independently verified through personal inspection by appropriate professionals. Listings displayed on this website may be subject to prior sale or removal from sale; availability of any listing should always be independent verified. Listing information is provided for consumer personal, non-commercial use, solely to identify potential properties for potential purchase; all other use is strictly prohibited and may violate relevant federal and state law. The source of the listing data is as follows: Stellar MLS (updated 2/6/26 1:09 AM) |

Listing Search



Translate Tool

Featured Listings
Orlando Real Estate
$625,000
3 BED
2 BATH
Orlando Real Estate
$574,900
3 BED
2 BATH
Orlando Real Estate
$525,000
2 BED
2 BATH
Orlando Real Estate
$599,900
3 BED
2 BATH
Orlando Real Estate
$625,000
3 BED
2 BATH
Orlando Real Estate
$850,000
5 BED
3 BATH
Orlando Real Estate
$699,900
4 BED
3 BATH
Orlando Real Estate
$1,174,000
4 BED
4 BATH
Orlando Real Estate
$875,000
4 BED
3 BATH
Orlando Real Estate
$930,000
3 BED
2 BATH
Real Estate News
  • Coming soon
Contact Kevin Strawter

Wendy Morris LLC

Licensed in the State of Florida
BK 3146762
16797 Broadwater Avenue
Winter Garden, Florida 34787

Your privacy is our utmost concern. We will never sell your personal information. Privacy Policy
©2026 drphillips.info - all rights reserved. | Site Map