407-990-2746
Menu

10842 Woodchase Circle, Orlando, FL

NEXT
PREV
$589,000

($319/sqft)

List Status: Pending
10842 Woodchase Circle
Orlando, FL 32836


3 beds
2 baths
1847 living sqft
Top Features
  • Subdivision: Avalon At Turtle Creek
  • Built in  1997
  • Single Family Residence
Description
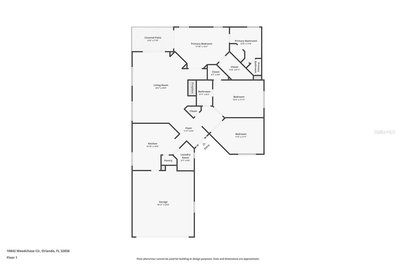
Under contract-accepting backup offers. Located in the 24 hour guard gated Turtle Creek community in Doctor Phillips, this beautifully maintained single story residence offers quiet luxury in one of Orlando’s most desirable enclaves. Set on a private lot with mature landscaping, a tile roof, and a paver driveway, the home makes an immediate impression with refined curb appeal and a serene setting. Inside, an open split floor plan with 12ft ceilings throughout creates a bright, airy atmosphere filled with natural light. High grade 24 x 48 imported tile installed in 2022 flows throughout the main living areas, complemented by updated fixtures and a real wood burning fireplace that anchors the living space. A dedicated bar area adds a sophisticated touch, ideal for entertaining or relaxed evenings at home. The kitchen features stainless steel appliances, including a GE range installed in 2025 and a dishwasher installed in late 2024 with a 10 year warranty, along with ample cabinetry and generous counter space that opens seamlessly to the living and dining areas. A newly installed sliding glass door in 2026 connects the interior to a private fenced patio and pavered backyard, offering effortless indoor outdoor living. The primary suite serves as a peaceful retreat with direct patio access and a spacious bath featuring dual vanities, a soaking tub, and a separate shower. Thoughtful infrastructure and smart home upgrades provide added value and peace of mind, including a recent whole house repipe, newer electrical panel, 2019 water heater, Reme Halo LED whole home air purification system added in 2025, HVAC maintenance and duct cleaning completed in December 2025, Ring Pro video doorbell, app enabled garage opener with camera and backup battery along with a new pin pad added in 2023, smart lighting throughout the interior and exterior, and upgraded outlets with USB and USB C ports. Premium Whirlpool washer and an app enabled dryer. The home purifier was also added Decembe
Property Details
Additional Information
Additional Lease Restrictions
Buyer to verify any restrictions with HOA and municipality.
Additional Parcels YN
false
Appliances
Dishwasher, Disposal, Electric Water Heater, Microwave, Range, Refrigerator
Architectural Style
Florida
Association Amenities
Gated, Park, Pool, Tennis Court(s)
Association Email
mleqve@yahoo.com
Association Fee
402
Association Fee Frequency
Quarterly
Association Fee Includes
Guard - 24 Hour, Maintenance Grounds
Association Fee Requirement
Required
Association URL
avalonturtlecreek.com
Association YN
true
Attached Garage YN
true
Available For Lease YN
1
Bathrooms Total Integer
2
Building Area Source
Public Records
Building Area Total
2521
Building Area Total Srch SqM
234.21
Building Area Units
Square Feet
Calculated List Price By Calculated SqFt
318.90
Carport YN
false
Community Features
Park, Pool, Tennis Court(s)
Construction Materials
Block, Stucco
Cooling
Central Air
Country
US
Cumulative Days On Market
46
Current Price
589000.00
Direction Faces
West
Elementary School
Sand Lake Elem
Expected Closing Date
2026-04-21T00:00:00.000
Exterior Features
Lighting, Private Mailbox, Rain Gutters, Sidewalk, Sliding Doors
Fencing
Fenced
Fireplace Features
Living Room
Fireplace YN
true
Flood Zone Code
X
Flooring
Carpet, Tile
Foundation Details
Slab
Furnished
Unfurnished
Garage Spaces
2
Garage YN
true
Green Indoor Air Quality
HVAC UV/Elec. Filtration, Ventilation
Heating
Central, Electric, Heat Pump
Home Warranty YN
true
Interior Features
Built-in Features, Ceiling Fans(s), Eat-in Kitchen, High Ceilings, Living Room/Dining Room Combo, Smart Home, Solid Wood Cabinets, Split Bedroom, Walk-In Closet(s), Wet Bar, Window Treatments
Internet Address Display YN
true
Internet Automated Valuation Display YN
true
Internet Consumer Comment YN
true
Internet Entire Listing Display YN
true
Laundry Features
Laundry Room
Levels
One
List AOR
Orlando Regional
Living Area Meters
171.59
Living Area Source
Public Records
Living Area Units
Square Feet
Lot Features
Landscaped, Level, Sidewalk, Paved
Lot Size Acres
0.17
Lot Size Square Feet
7220
Lot Size Square Meters
671
Middle Or Junior School
Southwest Middle
Minimum Lease
No Minimum
Modification Timestamp
2026-03-25T00:49:09.010Z
Monthly HOA Amount
134.00
New Construction YN
false
Occupant Type
Vacant
Other Fees Amount
548
Other Fees Term
Quarterly
Ownership
Fee Simple
Parcel Number
10-24-28-0554-00-150
Patio And Porch Features
Covered, Patio, Rear Porch
Pet Restrictions
Buyer to verify any restrictions with HOA and municipality.
Pets Allowed
Yes
Pool Private YN
false
Postal Code Plus 4
5859
Previous List Price
599900
Price Change Timestamp
2026-03-10T16:52:12.000Z
Public Survey Range
28
Public Survey Section
10
Purchase Contract Date
2026-03-23
RATIO Current Price By Calculated SqFt
318.90
Realtor Info
As-Is, Docs Available, Floor Plan Available
Road Surface Type
Asphalt
Roof
Tile
Room Count
10
Security Features
Gated Community
Senior Community YN
false
Sewer
Public Sewer
Showing Requirements
Call Listing Agent 2, See Remarks, ShowingTime
Status Change Timestamp
2026-03-25T00:48:56.000Z
Tax Annual Amount
8164.32
Tax Block
00
Tax Book Number
36-76
Tax Legal Description
AVALON PHASE 1 AT TURTLE CREEK 36/76 LOT15
Tax Lot
15
Tax Year
2025
Total Acreage
0 to less than 1/4
Total Annual Fees
3800.00
Total Monthly Fees
316.67
Township
24
Universal Property Id
US-12095-N-102428055400150-R-N
Unparsed Address
10842 WOODCHASE CIR
Utilities
Public, Water Connected
Vegetation
Mature Landscaping
Water Source
Public
Waterfront YN
false
Window Features
Blinds
Zoning
R-L-D
Neighborhood Map
Popup

Property Photos
Listing Photo
Listing Photo
Listing Photo
Listing Photo
Listing Photo
Listing Photo
Listing Photo
Listing Photo
Listing Photo
Listing Photo
Listing Photo
Listing Photo
Listing Photo
Listing Photo
Listing Photo
Listing Photo
Listing Photo
Listing Photo
Listing Photo
Listing Photo
Listing Photo
Listing Photo
Listing Photo
Listing Photo
Listing Photo
Listing Photo
Listing Photo
Listing Photo
Listing Photo
Listing Photo
Listing Photo
Listing Photo
Listing Photo
Listing Photo
Listing Photo
Listing Photo
Listing Photo
Listing Photo
Listing Photo
Listing Photo
Listing Photo
Listing Photo
Listing Photo
Listing Photo
Listing Photo
Listing Photo
Listing Photo
Listing Photo
Listing Photo
Listing Photo
Listing Photo
Listing Photo
Listing Photo
Listing Photo
Listing Photo
Listing Photo
Listing Photo
Listing Photo
Listing Photo
Listing Photo
Listing Photo
Listing Photo
Listing Photo
Listing Photo
Listing Photo
Listing Photo
Listing Photo
Listing Photo
Listing Photo
Listing Photo
Listing Photo
Listing Photo
Listing Photo
Listing Photo
Listing Photo
Listing Photo

MLS #MFRO6379272 Listing courtesy of Real Broker, Llc provided by Stellar MLS.

Similar Listings

$533,000
6959 Sorrento Street
Orlando
3BR/2BA
| Active
$535,000
8002 Sandpoint Boulevard
Orlando
3BR/2BA
| Active
$539,000
109 S Brown Avenue
Orlando
3BR/2BA
| Active
$539,000
1502 E Gore Street
Orlando
3BR/2BA
| Active



All listing information is deemed reliable but not guaranteed and should be independently verified through personal inspection by appropriate professionals. Listings displayed on this website may be subject to prior sale or removal from sale; availability of any listing should always be independent verified. Listing information is provided for consumer personal, non-commercial use, solely to identify potential properties for potential purchase; all other use is strictly prohibited and may violate relevant federal and state law. The source of the listing data is as follows: Stellar MLS (updated 3/24/26 11:40 PM) |

Listing Search



Translate Tool

Featured Listings
Orlando Real Estate
$783,900
4 BED
3 BATH
Welcome to this exquisite 4-bedroom, 3-bath home located in the highly desirable Sand Lake Cove community in Dr. Phillip... Read More
Orlando Real Estate
$589,000
3 BED
2 BATH
Under contract-accepting backup offers. Located in the 24 hour guard gated Turtle Creek community in Doctor Phillips, th... Read More
Orlando Real Estate
$879,000
4 BED
3 BATH
One or more photo(s) has been virtually staged. ***$200K+ on upgrades***Welcome to 9107 Ivey Hill. Nestled in the heart ... Read More
Orlando Real Estate
$700,000
3 BED
2 BATH
Perched 11 floors above the heart of Dr. Phillips and offering panoramic views of the Orlando skyline and surrounding la... Read More
Orlando Real Estate
$998,000
5 BED
4 BATH
Fantastic OPPORTUNITY to own this South Bay home in the Heart of Dr. Phillips! Priced very attractively, this 5 bedroom,... Read More
Orlando Real Estate
$629,000
3 BED
3 BATH
One or more photo(s) has been virtually staged. Welcome to a beautiful Spanish/Mediterranean-inspired residence in Grana... Read More
Orlando Real Estate
$185,000
1 BED
1 BATH
Welcome to resort-style living at The Point Orlando! This 9th-floor, 1-bedroom, 1-bath residence combines comfort and co... Read More
Orlando Real Estate
$995,000
4 BED
3 BATH
Welcome to Luxury Pool Home in the Heart of Dr. Phillips this beautifully renovated 4-bedroom, 3.5-bath residence offeri... Read More
Orlando Real Estate
$878,000
4 BED
3 BATH
One or more photo(s) has been virtually staged. Completely Renovated Pool Home in Coveted Orange Tree, Dr. Phillips! Wel... Read More
Orlando Real Estate
$1,200,000
5 BED
5 BATH
* PREMIUM CORNER LOT LOCATED IN AN EXCLUSIVE GATED COMMUNITY * THIS PROPERTY FEATURES MARBLE FLOORING, STAINLESS STEEL S... Read More
Real Estate News
  • Coming soon
Contact Kevin Strawter

Wendy Morris LLC

Licensed in the State of Florida
BK 3146762
16797 Broadwater Avenue
Winter Garden, Florida 34787

Your privacy is our utmost concern. We will never sell your personal information. Privacy Policy
©2026 drphillips.info - all rights reserved. | Site Map