407-990-2746
Menu

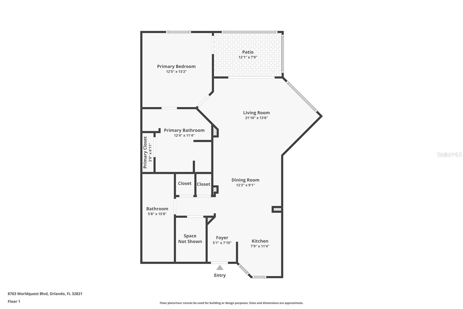
8762 Worldquest Boulevard Unit: Unit: 5103, Orlando, FL

NEXT
PREV
$239,000

($203/sqft)

List Status: Pending
8762 Worldquest Boulevard
Orlando, FL 32821


2 beds
2 baths
1178 living sqft
Top Features
  • Subdivision: Worldquest Residence
  • Built in  2008
  • Condominium
Description
Fully Furnished 2-Bedroom Condo on the First Floor! This well-kept 2-bed, 2-bath residence at WorldQuest Resort comes completely furnished and ready for immediate use. Enjoy the convenience of an in-unit washer and dryer and a private screened-in patio perfect for relaxing after a day at the parks. With the community allowing both short-term/vacation rentals and long-term leases, you’ll appreciate the flexibility this property offers. Ideally located just minutes from major theme parks, dining, shopping, and key highways.
Property Details
Additional Information
Additional Lease Restrictions
max lease is 6 months. NO permanent residence
Additional Parcels YN
false
Alternate Key Folio Num
282434933106203
Appliances
Dishwasher, Dryer, Microwave, Range, Refrigerator, Washer
Association Email
dsteadman@KWIResorts.com
Association Fee Includes
Cable TV, Common Area Taxes, Pool, Internet, Management, Recreational Facilities
Association YN
true
Available For Lease YN
1
Bathrooms Total Integer
2
Building Area Source
Builder
Building Area Total
1178
Building Area Total Srch SqM
109.44
Building Area Units
Square Feet
Building Elevator YN
1
Calculated List Price By Calculated SqFt
202.89
Carport YN
false
Community Features
Pool
Condo Fees
580
Condo Fees Term
Monthly
Construction Materials
Block
Cooling
Central Air
Country
US
Cumulative Days On Market
86
Current Price
239000.00
Direction Faces
West
Expected Closing Date
2026-03-27T00:00:00.000
Exterior Features
Tennis Court(s)
Fireplace YN
false
Flood Zone Code
x
Floor Number
1
Flooring
Carpet, Tile
Foundation Details
Slab
Furnished
Furnished
Garage YN
false
Heating
Central
Interior Features
Built-in Features, Ceiling Fans(s)
Internet Address Display YN
true
Internet Automated Valuation Display YN
false
Internet Consumer Comment YN
false
Internet Entire Listing Display YN
true
Laundry Features
Inside
Levels
One
List AOR
Osceola
Living Area Meters
109.44
Living Area Source
Public Records
Living Area Units
Square Feet
Lot Size Acres
0.03
Lot Size Square Feet
1178
Lot Size Square Meters
109
Minimum Lease
No Minimum
Modification Timestamp
2026-03-11T17:08:17.406Z
Monthly Condo Fee Amount
580
New Construction YN
false
Occupant Type
Vacant
Ownership
Fee Simple
Parcel Number
28-24-34-9331-05-103
Pets Allowed
No
Pool Private YN
false
Public Survey Range
28
Public Survey Section
34
Purchase Contract Date
2026-03-06
RATIO Current Price By Calculated SqFt
202.89
Road Surface Type
Asphalt, Paved
Roof
Shingle
Room Count
4
Senior Community YN
false
Sewer
Public Sewer
Showing Requirements
Call Listing Agent
Status Change Timestamp
2026-03-11T17:07:19.000Z
Stories Total
5
Tax Annual Amount
2397
Tax Block
5
Tax Book Number
8739-4258
Tax Legal Description
WORLDQUEST RESORT PHASE 5 CONDOMINIUM 9435/0570 UNIT 6103
Tax Lot
103
Tax Year
2024
Total Acreage
0 to less than 1/4
Total Annual Fees
6960.00
Total Monthly Fees
580.00
Township
24
Universal Property Id
US-12095-N-282434933105103-S-5103
Unparsed Address
8762 WORLDQUEST BLVD #5103
Utilities
Cable Available, Cable Connected, Electricity Available, Electricity Connected, Phone Available, Sewer Connected, Underground Utilities
Water Source
Public
Waterfront YN
false
Zoning
P-D
Neighborhood Map
Popup

Property Photos
Listing Photo
Listing Photo
Listing Photo
Listing Photo
Listing Photo
Listing Photo
Listing Photo
Listing Photo
Listing Photo
Listing Photo
Listing Photo
Listing Photo
Listing Photo
Listing Photo
Listing Photo
Listing Photo
Listing Photo
Listing Photo
Listing Photo
Listing Photo
Listing Photo
Listing Photo
Listing Photo
Listing Photo
Listing Photo
Listing Photo
Listing Photo
Listing Photo
Listing Photo
Listing Photo
Listing Photo
Listing Photo
Listing Photo
Listing Photo
Listing Photo
Listing Photo
Listing Photo
Listing Photo
Listing Photo
Listing Photo
Listing Photo
Listing Photo
Listing Photo
Listing Photo
Listing Photo
Listing Photo
Listing Photo
Listing Photo
Listing Photo
Listing Photo
Listing Photo
Listing Photo
Listing Photo
Listing Photo
Listing Photo
Listing Photo
Listing Photo
Listing Photo
Listing Photo
Listing Photo

MLS #MFRS5139924 Listing courtesy of Century 21 Edge provided by Stellar MLS.

Similar Listings

$217,000
5417 Lake Margaret Drive
Orlando
2BR/2BA
| Active
$217,000
12544 Floridays Resort Dr
Orlando
2BR/2BA
| Active
$217,500
14205 Falls Church Drive
Orlando
2BR/2BA
| Active
$217,900
3318 Greenwich Village Boulevard
Orlando
2BR/2BA
| Active



All listing information is deemed reliable but not guaranteed and should be independently verified through personal inspection by appropriate professionals. Listings displayed on this website may be subject to prior sale or removal from sale; availability of any listing should always be independent verified. Listing information is provided for consumer personal, non-commercial use, solely to identify potential properties for potential purchase; all other use is strictly prohibited and may violate relevant federal and state law. The source of the listing data is as follows: Stellar MLS (updated 3/24/26 4:38 AM) |

Listing Search



Translate Tool

Featured Listings
Orlando Real Estate
$150,000
1 BED
1 BATH
The perfect vacation destination and investment! Your repeat vacationers will explore Orlando from this very accessible ... Read More
Orlando Real Estate
$795,000
5 BED
3 BATH
One or more photo(s) has been virtually staged. Welcome to 6956 Lucca Street, located in the highly desirable gated comm... Read More
Orlando Real Estate
$995,000
4 BED
2 BATH
Exceptional single story Toll Brothers home with over $100,000 in upgrades done by current owners, located in the highly... Read More
Orlando Real Estate
$1,025,000
4 BED
3 BATH
Welcome to this exceptional custom residence in the exclusive Venezia enclave, a quiet and desirable pocket community in... Read More
Orlando Real Estate
$1,000,000
5 BED
4 BATH
PRICE REDUCED, Provence at Lake Sheen. 4068/5019 SqFT 5-bedroom, 4-bath executive SCREENED HEATED SALT PURIFIED POOL hom... Read More
Orlando Real Estate
$1,049,000
4 BED
4 BATH
Welcome to 5314 Shadywood Lane, a private Dr. Phillips estate where thoughtful design, expansive scale, and modern infra... Read More
Orlando Real Estate
$145,000
1 BED
1 BATH
New LOW Price! Will not last at this price! NO SPECIAL ASSESSMENTS! Located in desirable Dr Phillips WITH LAKEFRONT LIVI... Read More
Orlando Real Estate
$1,179,000
4 BED
4 BATH
PRIVATE ESTATE LIVING IN THE HEART OF DR. PHILLIPS Looking for LAND, PRIVACY, NO HOA, AND ENDLESS POSSIBILITIES? Welcome... Read More
Orlando Real Estate
$1,275,000
4 BED
3 BATH
Located in the highly sought-after gated community of Ruby Lake, this exceptional lakefront residence offers resort-styl... Read More
Orlando Real Estate
$769,000
3 BED
3 BATH
POOL HOME meticulously maintained in a guard-gated community close to Disney World in Dr. Phillips, one of Central Flori... Read More
Real Estate News
  • Coming soon
Contact Kevin Strawter

Wendy Morris LLC

Licensed in the State of Florida
BK 3146762
16797 Broadwater Avenue
Winter Garden, Florida 34787

Your privacy is our utmost concern. We will never sell your personal information. Privacy Policy
©2026 drphillips.info - all rights reserved. | Site Map