407-990-2746
Menu

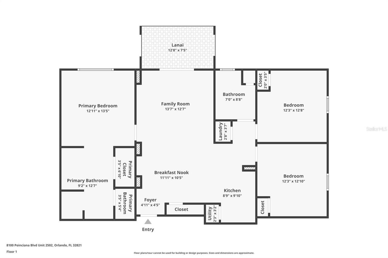
8100 Poinciana Boulevard Unit: Unit: 2502, Orlando, FL

NEXT
PREV
$149,999

($122/sqft)

List Status: Pending
8100 Poinciana Boulevard
Orlando, FL 32821


3 beds
2 baths
1231 living sqft
Top Features
  • Subdivision: Lake Buena Vista Resort
  • Built in  2006
  • Condo - Hotel
Description
Experience resort-style living at its finest in this fully furnished 3-bedroom, 2-bathroom condo located on the 5th floor of Building 2 within the highly acclaimed Lake Buena Vista Resort Village & Spa. This spacious unit is designed for both comfort and utility, featuring an open floor plan and a private balcony perfect for relaxing after a day in the Florida sun. Whether you are looking for a personal vacation retreat or a high-potential addition to your investment portfolio, this property offers a seamless ownership experience with a fully equipped kitchen and generous living spaces. The resort provides a comprehensive suite of amenities designed to enhance the guest experience, including multiple heated pool areas, on-site dining and lounge options, and a full-service spa and fitness center. Owners and guests alike benefit from the property’s prime location, situated just minutes from Central Florida’s world-famous theme parks, premier outlet shopping, and diverse dining districts. With professional on-site management and convenient transportation services to local attractions, this condo represents an exceptional opportunity to own a piece of one of the world's most popular travel destinations.
Property Details
Additional Information
Additional Lease Restrictions
Unit Owners who do not utilize the on-site rental program must notify on-site management at least 48 hours in advance of the occupancy of anyone who will be checking in. Keys are still issued by front desk and fees are applied to owners if not returned.
Additional Parcels YN
false
Alternate Key Folio Num
282435435602502
Appliances
Dishwasher, Dryer, Microwave, Range, Refrigerator, Washer
Approval Process
For those renting their units independently, adherence to regulations covering insurance, licensing, tax requirements, and reservation handling is necessary.
Association Approval Required YN
1
Association Email
ownerservices@lbvorlandoresort.com
Association Fee
805.18
Association Fee Frequency
Monthly
Association Fee Includes
Cable TV, Internet, Pest Control, Recreational Facilities, Trash, Water
Association Fee Requirement
Required
Association YN
true
Available For Lease YN
1
Bathrooms Total Integer
2
Building Area Source
Public Records
Building Area Total
1231
Building Area Total Srch SqM
114.36
Building Area Units
Square Feet
Building Elevator YN
1
Calculated List Price By Calculated SqFt
121.85
Carport YN
false
Community Features
Fitness Center, Pool, Sidewalks
Construction Materials
Other
Contract Status
Inspections
Cooling
Central Air
Country
US
Cumulative Days On Market
86
Current Price
149999.00
Direction Faces
South
Expected Closing Date
2026-05-14T00:00:00.000
Exterior Features
Sidewalk
Fireplace YN
false
Flood Zone Code
x
Flood Zone Date
2009-09-25
Flood Zone Panel
12095C0605F
Floor Number
5
Flooring
Carpet, Tile
Foundation Details
Slab
Furnished
Furnished
Garage YN
false
Heating
Central, Electric
Interior Features
Ceiling Fans(s)
Internet Address Display YN
true
Internet Automated Valuation Display YN
true
Internet Consumer Comment YN
true
Internet Entire Listing Display YN
true
Laundry Features
Laundry Closet
Lease Restrictions YN
1
Levels
One
List AOR
Osceola
Living Area Meters
114.36
Living Area Source
Public Records
Living Area Units
Square Feet
Lot Size Acres
0.03
Lot Size Square Feet
1231
Lot Size Square Meters
114
Minimum Lease
No Minimum
Modification Timestamp
2026-04-16T15:18:09.433Z
Monthly HOA Amount
805.18
New Construction YN
false
Occupant Type
Tenant
Ownership
Condominium
Parcel Number
35-24-28-4356-02-502
Pets Allowed
No
Pool Private YN
false
Postal Code Plus 4
5617
Previous List Price
159999
Price Change Timestamp
2026-03-26T13:57:23.000Z
Public Survey Range
28
Public Survey Section
35
Purchase Contract Date
2026-04-16
RATIO Current Price By Calculated SqFt
121.85
Realtor Info
Floor Plan Available, Foreign Seller, Short Term Rental Allowed
Road Surface Type
Paved
Roof
Other
Room Count
5
Senior Community YN
false
Sewer
Public Sewer
Showing Requirements
ShowingTime
Status Change Timestamp
2026-04-16T15:17:23.000Z
Stories Total
8
Tax Annual Amount
2842.69
Tax Block
2
Tax Book Number
8403-3240
Tax Legal Description
LAKE BUENA VISTA RESORT VILLAGE 1 CONDOMINIUM PHASE 2 8542/3695 UNIT 2502 BLDG 2
Tax Lot
502
Tax Year
2024
Total Acreage
0 to less than 1/4
Total Annual Fees
9662.16
Total Monthly Fees
805.18
Township
24
Universal Property Id
US-12095-N-352428435602502-S-2502
Unparsed Address
8100 POINCIANA BLVD #2502
Utilities
BB/HS Internet Available, Cable Available, Electricity Available, Phone Available, Public, Water Available
Water Source
Public
Waterfront YN
false
Zoning
P-D
Neighborhood Map
Popup

Property Photos
Listing Photo
Listing Photo
Listing Photo
Listing Photo
Listing Photo
Listing Photo
Listing Photo
Listing Photo
Listing Photo
Listing Photo
Listing Photo
Listing Photo
Listing Photo
Listing Photo
Listing Photo
Listing Photo
Listing Photo
Listing Photo
Listing Photo
Listing Photo
Listing Photo
Listing Photo
Listing Photo
Listing Photo
Listing Photo
Listing Photo
Listing Photo
Listing Photo
Listing Photo
Listing Photo
Listing Photo
Listing Photo
Listing Photo
Listing Photo
Listing Photo
Listing Photo
Listing Photo
Listing Photo
Listing Photo
Listing Photo
Listing Photo
Listing Photo
Listing Photo
Listing Photo
Listing Photo
Listing Photo
Listing Photo
Listing Photo
Listing Photo
Listing Photo
Listing Photo
Listing Photo
Listing Photo
Listing Photo
Listing Photo
Listing Photo
Listing Photo
Listing Photo
Listing Photo
Listing Photo
Listing Photo
Listing Photo
Listing Photo
Listing Photo
Listing Photo
Listing Photo
Listing Photo
Listing Photo
Listing Photo
Listing Photo
Listing Photo
Listing Photo
Listing Photo
Listing Photo
Listing Photo
Listing Photo
Listing Photo
Listing Photo
Listing Photo
Listing Photo
Listing Photo
Listing Photo
Listing Photo
Listing Photo
Listing Photo
Listing Photo

MLS #MFRS5142144 Listing courtesy of Team Donovan provided by Stellar MLS.

Similar Listings

$138,000
4340 Aqua Vista Drive
Orlando
3BR/2BA
| Active
$139,000
17134 Atlas Road
Orlando
3BR/2BA
| Active
$139,000
1948 Lake Atriums Circle
Orlando
3BR/2BA
| Active
$139,900
4623 Ternstone Avenue
Orlando
3BR/2BA
| Pending



All listing information is deemed reliable but not guaranteed and should be independently verified through personal inspection by appropriate professionals. Listings displayed on this website may be subject to prior sale or removal from sale; availability of any listing should always be independent verified. Listing information is provided for consumer personal, non-commercial use, solely to identify potential properties for potential purchase; all other use is strictly prohibited and may violate relevant federal and state law. The source of the listing data is as follows: Stellar MLS (updated 5/5/26 4:36 PM) |

Listing Search



Translate Tool

Featured Listings
Orlando Real Estate
$575,000
3 BED
2 BATH
BACK ON MARKET. PRICE REDUCTION OF $20,000 TO ENCOURAGE QUICK SALE! NEW SEPTIC TANK! Welcome to your private oasis in Gr... Read More
Orlando Real Estate
$650,000
5 BED
3 BATH
One or more photo(s) has been virtually staged. Positioned on a large corner lot in the heart of Dr. Phillips, this 5-be... Read More
Orlando Real Estate
$830,000
3 BED
2 BATH
This is it — one of the most meticulously cared-for and thoughtfully upgraded homes in Granada Villas, Dr. Phillips, con... Read More
Orlando Real Estate
$619,900
3 BED
2 BATH
Welcome to the very sought-after gated neighborhood of Orange Tree Golf Club, nestled in the heart of Dr. Phillips. This... Read More
Orlando Real Estate
$550,000
3 BED
2 BATH
Under contract-accepting backup offers. *** Multiple offers received, deadline for highest and best is Monday 05/04/2026... Read More
Orlando Real Estate
$599,000
3 BED
2 BATH
Lakefront renovated townhome in the highly sought after gated community of Phillips Bay, offered fully furnished! Experi... Read More
Orlando Real Estate
$775,000
4 BED
3 BATH
Welcome to this spacious one-story pool home offering four bedrooms, a dedicated study, and three baths in the sought-af... Read More
Orlando Real Estate
$799,800
4 BED
4 BATH
BUYERS - IN THE PAST YEAR ONLY 3 HOMES SOLD IN THIS POPULAR DR. PHILLIPS NEIGHBORHOOD. This is the MOST POPULAR FLOORPLA... Read More
Orlando Real Estate
$1,000,000
5 BED
4 BATH
Welcome to 10319 Lavande Dr, located in an exclusive gated enclave of just 36 homes in Provence at Lake Sheen—just minut... Read More
Orlando Real Estate
$550,000
2 BED
2 BATH
One or more photo(s) has been virtually staged. Welcome to Vizcaya, a guard gated community in Dr Phillips known for its... Read More
Real Estate News
  • Coming soon
Contact Kevin Strawter

Wendy Morris LLC

Licensed in the State of Florida
BK 3146762
16797 Broadwater Avenue
Winter Garden, Florida 34787

Your privacy is our utmost concern. We will never sell your personal information. Privacy Policy
©2026 drphillips.info - all rights reserved. | Site Map