407-990-2746
Menu

5160 Terra Vista Way, Orlando, FL

NEXT
PREV
$620,000

($221/sqft)

List Status: Active
5160 Terra Vista Way
Orlando, FL 32837


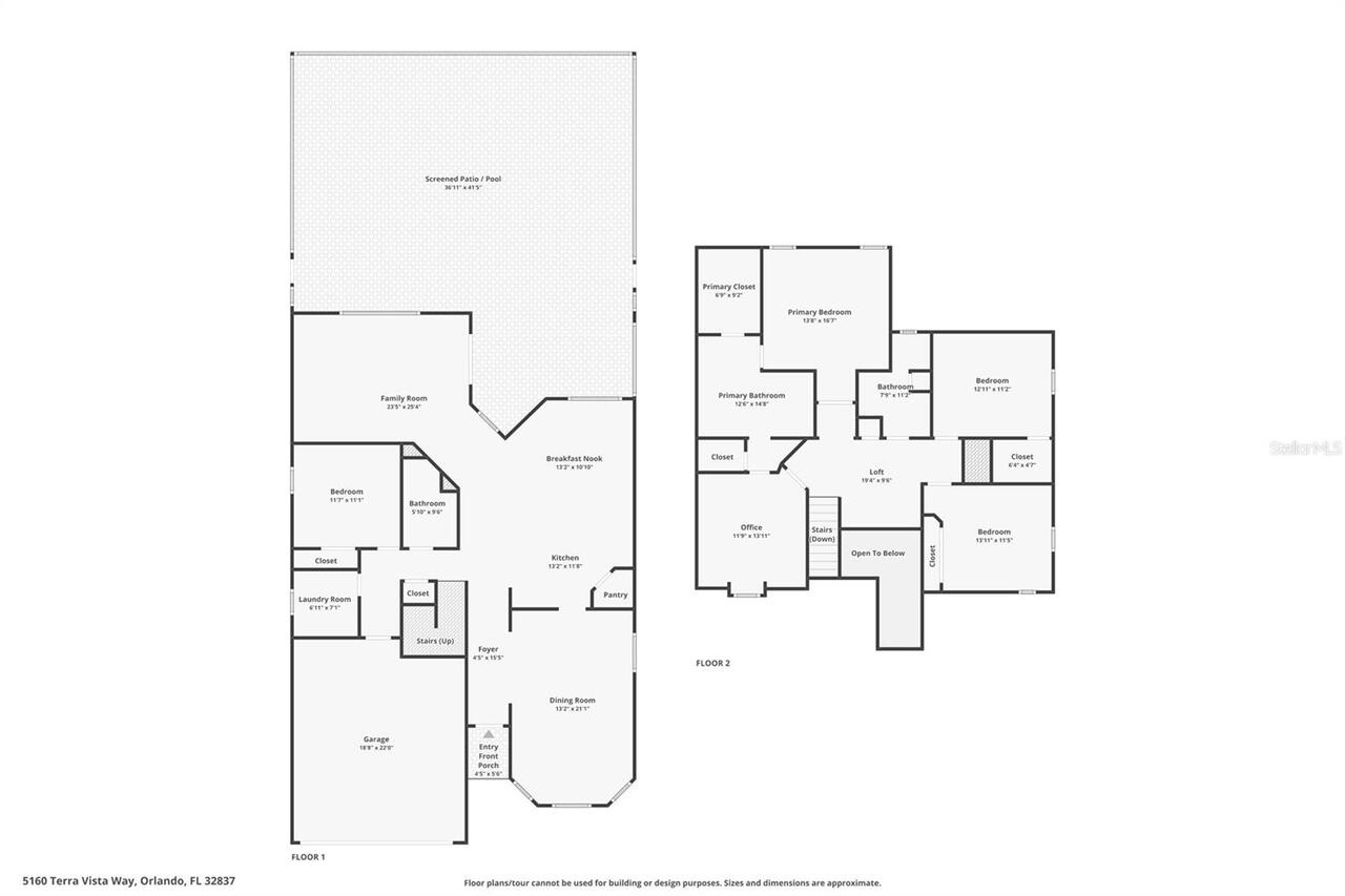
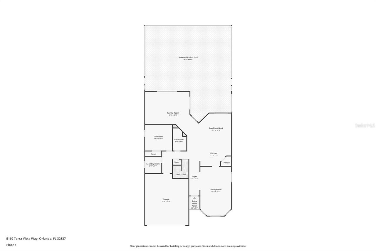
5 beds
3 baths
2804 living sqft
Top Features
  • View: Garden, Pool
  • Subdivision: Hunters Crk 524-a
  • Built in  2004
  • Single Family Residence
Description
One or more photo(s) has been virtually staged. Just listed! Welcome to 5160 Terra Vista Way, a spacious 5-bedroom, 3-bathroom pool home offering 2,804 heated square feet in the highly sought-after Vistas at Hunters Creek community. Situated on a desirable corner lot, this well-maintained residence features numerous recent upgrades, including a newer roof, new water heater, new baseboards, fresh interior and exterior paint, upgraded LED lighting throughout, and new ceiling fans. The home also boasts new stainless steel appliances and a beautifully updated bathroom with quartz countertops and a luxurious his-and-hers shower. Outdoor living is equally impressive with pavers throughout the exterior areas and an extended screened-in pool enclosure, creating the perfect space for relaxing or entertaining guests year-round. The functional and spacious floor plan offers multiple living and entertaining areas, ideal for families or those who love to host. The private pool area provides a peaceful outdoor retreat while still being close to everything Central Florida has to offer. Residents of The Vistas at Hunters Creek enjoy outstanding community amenities including soccer fields, playgrounds, dog parks, pickleball and basketball courts, baseball fields, and scenic walking and biking trails. Conveniently located approximately 10 minutes from Orlando International Airport, and just minutes from major highways, hospitals, shopping, dining, and world-class Central Florida attractions, this home offers an exceptional combination of space, upgrades, and prime location. Seller incentive: The seller is offering a 1% lender credit (based on the buyer’s loan amount) toward the buyer’s closing costs or interest rate buy-down when using the seller’s preferred lender. Schedule your private showing today and experience everything this exceptional Hunters Creek home has to offer.
Property Details
Property Features
Property Sub Type
Single Family Residence
View
Garden, Pool
Parking
Driveway, Garage Door Opener, Guest
Pool
Screen Enclosure, Gunite, Lighting, Deck, Lap, In Ground
County
Orange
Subdivision
HUNTERS CRK 524-A
Additional Information
Additional Lease Restrictions
Please verify all information with HOA
Additional Parcels YN
false
Additional Rooms
Den/Library/Office, Family Room, Formal Dining Room Separate
Alternate Key Folio Num
292431385900030
Appliances
Dishwasher, Disposal, Electric Water Heater, Ice Maker, Microwave, Range, Range Hood, Refrigerator
Approval Process
Please verify all information with HOA
Architectural Style
Mediterranean, Traditional
Association Amenities
Basketball Court, Clubhouse, Fitness Center, Golf Course, Pickleball Court(s), Playground, Pool, Recreation Facilities
Association Approval Required YN
1
Association Fee
319.79
Association Fee Frequency
Quarterly
Association Fee Requirement
Required
Association YN
true
Attached Garage YN
true
Available For Lease YN
1
Bathrooms Total Integer
3
Building Area Source
Public Records
Building Area Total
3405
Building Area Total Srch SqM
316.33
Building Area Units
Square Feet
Calculated List Price By Calculated SqFt
221.11
Carport YN
false
Community Features
Street Lights
Construction Materials
Block, Stucco
Cooling
Central Air
Country
US
Cumulative Days On Market
79
Current Price
620000.00
Direction Faces
North
Elementary School
West Creek Elem
Exterior Features
Garden, Sidewalk
Fencing
Wood
Fireplace YN
false
Flood Zone Code
X
Flood Zone Date
2009-09-25
Flood Zone Panel
12095C0605F
Flooring
Laminate, Tile
Foundation Details
Slab
Furnished
Unfurnished
Garage Spaces
2
Garage YN
true
Heating
Central
High School
Freedom High School
Homestead YN
1
Interior Features
Cathedral Ceiling(s), Ceiling Fans(s), High Ceilings, Open Floorplan, PrimaryBedroom Upstairs, Solid Surface Counters, Solid Wood Cabinets, Stone Counters, Thermostat, Vaulted Ceiling(s), Walk-In Closet(s), Window Treatments
Internet Address Display YN
true
Internet Automated Valuation Display YN
false
Internet Consumer Comment YN
false
Internet Entire Listing Display YN
true
Laundry Features
Electric Dryer Hookup, Inside, Laundry Room
Levels
Two
List AOR
Osceola
Living Area Meters
260.50
Living Area Source
Public Records
Living Area Units
Square Feet
Lot Features
Cleared, Corner Lot, Near Golf Course, Oversized Lot, Sidewalk, Paved
Lot Size Acres
0.17
Lot Size Square Feet
7366
Lot Size Square Meters
684
Middle Or Junior School
Hunter's Creek Middle
Minimum Lease
7 Months
Modification Timestamp
2026-05-23T22:10:09.420Z
Monthly HOA Amount
106.60
New Construction YN
false
Occupant Type
Vacant
Other Equipment
Irrigation Equipment
Ownership
Fee Simple
Parcel Number
31-24-29-3859-00-030
Patio And Porch Features
Covered, Deck, Rear Porch, Screened
Pet Restrictions
Please verify all information with HOA
Pets Allowed
Cats OK, Dogs OK, Yes
Pool Private YN
true
Postal Code Plus 4
4759
Previous List Price
600000
Price Change Timestamp
2026-05-23T22:09:54.000Z
Property Description
Corner Unit, End Unit
Public Survey Range
29
Public Survey Section
31
RATIO Current Price By Calculated SqFt
221.11
Realtor Info
As-Is, Docs Available, See Attachments, Sign
Road Surface Type
Asphalt
Roof
Shingle
Room Count
11
Senior Community YN
false
Sewer
Public Sewer
Showing Requirements
Combination Lock Box, Go Direct, Lock Box Coded, See Remarks, ShowingTime
Spa YN
false
Status Change Timestamp
2026-03-06T00:16:53.000Z
Stories Total
2
Tax Annual Amount
4848.62
Tax Block
00
Tax Book Number
55-131
Tax Legal Description
HUNTERS CREEK TRACT 524-A 55/131 LOT 3
Tax Lot
3
Tax Year
2025
Total Acreage
0 to less than 1/4
Total Annual Fees
1279.16
Total Monthly Fees
106.60
Township
24
Universal Property Id
US-12095-N-312429385900030-R-N
Unparsed Address
5160 TERRA VISTA WAY
Utilities
Cable Connected, Electricity Connected, Public, Sprinkler Meter, Water Connected
Vegetation
Mature Landscaping, Trees/Landscaped
Water Source
Public
Waterfront YN
false
Zoning
P-D
Neighborhood Map
Popup

Property Photos
Listing Photo
Listing Photo
Listing Photo
Listing Photo
Listing Photo
Listing Photo
Listing Photo
Listing Photo
Listing Photo
Listing Photo
Listing Photo
Listing Photo
Listing Photo
Listing Photo
Listing Photo
Listing Photo
Listing Photo
Listing Photo
Listing Photo
Listing Photo
Listing Photo
Listing Photo
Listing Photo
Listing Photo
Listing Photo
Listing Photo
Listing Photo
Listing Photo
Listing Photo
Listing Photo
Listing Photo
Listing Photo
Listing Photo
Listing Photo
Listing Photo
Listing Photo
Listing Photo
Listing Photo
Listing Photo
Listing Photo
Listing Photo
Listing Photo
Listing Photo
Listing Photo
Listing Photo
Listing Photo
Listing Photo
Listing Photo
Listing Photo
Listing Photo
Listing Photo
Listing Photo
Listing Photo
Listing Photo
Listing Photo
Listing Photo
Listing Photo
Listing Photo
Listing Photo
Listing Photo
Listing Photo
Listing Photo
Listing Photo
Listing Photo
Listing Photo
Listing Photo
Listing Photo
Listing Photo
Listing Photo
Listing Photo
Listing Photo
Listing Photo
Listing Photo
Listing Photo
Listing Photo
Listing Photo
Listing Photo
Listing Photo
Listing Photo
Listing Photo
Listing Photo
Listing Photo
Listing Photo
Listing Photo
Listing Photo
Listing Photo
Listing Photo
Listing Photo
Listing Photo
Listing Photo
Listing Photo
Listing Photo
Listing Photo
Listing Photo
Listing Photo
Listing Photo
Listing Photo
Listing Photo
Listing Photo
Listing Photo
Listing Photo
Listing Photo
Listing Photo
Listing Photo
Listing Photo
Listing Photo
Listing Photo
Listing Photo
Listing Photo
Listing Photo
Listing Photo
Listing Photo
Listing Photo
Listing Photo

MLS #MFRS5144755 Listing courtesy of Robert Michael & Company Inc. provided by Stellar MLS.

Similar Listings

$559,900
11872 Language Wy
Orlando
5BR/3BA
| Active
$564,000
232 Elena Lavin Circle
Orlando
5BR/3BA
| Pending
$565,000
6658 Lake Pembroke Place
Orlando
5BR/3BA
| Active
$569,000
14720 Sweet Acacia Drive
Orlando
5BR/3BA
| Active



All listing information is deemed reliable but not guaranteed and should be independently verified through personal inspection by appropriate professionals. Listings displayed on this website may be subject to prior sale or removal from sale; availability of any listing should always be independent verified. Listing information is provided for consumer personal, non-commercial use, solely to identify potential properties for potential purchase; all other use is strictly prohibited and may violate relevant federal and state law. The source of the listing data is as follows: Stellar MLS (updated 5/24/26 12:37 PM) |

Listing Search



Translate Tool

Featured Listings
Orlando Real Estate
$1,050,000
4 BED
2 BATH
Stunning Fully Remodeled Home on Oversized ½ Acre Lot. Experience luxury living in this beautifully renovated, move-in-r... Read More
Orlando Real Estate
$135,000
2 BED
2 BATH
Under contract-accepting backup offers. POND view! Beautifully maintained waterfront condo in an unbeatable location! Th... Read More
Orlando Real Estate
$410,000
3 BED
2 BATH
Welcome Home! This beautifully upgraded end-unit San Carlo model offers 3 bedrooms, 2 bathrooms, and 1,656 sq ft of thou... Read More
Orlando Real Estate
$309,900
4 BED
2 BATH
If you’ve been trying to invest in Orlando, FL’s growing real estate market, this 4-bedroom single family home in Tangel... Read More
Orlando Real Estate
$650,000
5 BED
3 BATH
One or more photo(s) has been virtually staged. Positioned on a large corner lot in the heart of Dr. Phillips, this 5-be... Read More
Orlando Real Estate
$625,000
3 BED
2 BATH
Golf Front | New Tile Roof 2024 | Remodeled Primary Suite | Located within the gated Orange Tree community in Dr. Philli... Read More
Orlando Real Estate
$780,000
5 BED
3 BATH
One or more photo(s) has been virtually staged. Welcome to 6956 Lucca Street, located in the highly desirable gated comm... Read More
Orlando Real Estate
$839,000
5 BED
4 BATH
Enjoy Disney fireworks from your front yard! Just minutes from Disney and surrounded by the Windermere area, this beauti... Read More
Orlando Real Estate
$759,000
4 BED
3 BATH
Nestled within the exclusive gated community of Toscana, this stunning Mediterranean-inspired residence offers the perfe... Read More
Orlando Real Estate
$665,000
4 BED
2 BATH
One or more photo(s) has been virtually staged. Price Improvement...! Welcome to Orange Tree Country Club, a highly soug... Read More
Real Estate News
  • Coming soon
Contact Kevin Strawter

Wendy Morris LLC

Licensed in the State of Florida
BK 3146762
16797 Broadwater Avenue
Winter Garden, Florida 34787

Your privacy is our utmost concern. We will never sell your personal information. Privacy Policy
©2026 drphillips.info - all rights reserved. | Site Map