407-990-2746
Menu

5047 Jamaica Circle Unit: Unit: 12, Orlando, FL

NEXT
PREV
$238,500

($156/sqft)

List Status: Active
5047 Jamaica Circle
Orlando, FL 32808


2 beds
2 baths
1528 living sqft
Top Features
  • Subdivision: Island Club At Rosemont Condo
  • Built in  1979
  • Condominium
Description
Property Details
Additional Information
Additional Lease Restrictions
Buyer to verify lease restrictions with HOA
Additional Parcels YN
false
Alternate Key Folio Num
05-22-29-3866-02-120
Appliances
Convection Oven, Dishwasher, Dryer, Electric Water Heater, Ice Maker, Microwave, Refrigerator, Washer
Association Amenities
Clubhouse, Pool
Association Email
aschaefer@vistacamfl.com
Association Fee Frequency
Monthly
Association Fee Includes
Pool, Maintenance Structure, Maintenance Grounds, Private Road, Trash
Association Fee Requirement
Required
Association URL
www.vistacamfl.com
Association YN
true
Attached Garage YN
true
Available For Lease YN
1
Bathrooms Total Integer
2
Building Area Source
Public Records
Building Area Total
2986
Building Area Total Srch SqM
277.41
Building Area Units
Square Feet
Calculated List Price By Calculated SqFt
156.09
Carport YN
false
Community Features
Clubhouse, Community Mailbox, Deed Restrictions, Gated Community - No Guard
Condo Fees
656
Condo Fees Term
Monthly
Condo Land Included YN
1
Construction Materials
Block, Stucco
Cooling
Central Air
Country
US
Cumulative Days On Market
24
Current Price
238500.00
Direction Faces
East
Exterior Features
Courtyard, Sliding Doors
Fireplace Features
Living Room, Wood Burning
Fireplace YN
true
Flood Zone Code
X
Flood Zone Date
2009-09-25
Flood Zone Panel
12095C0235F
Floor Number
1
Flooring
Laminate, Tile
Foundation Details
Slab
Furnished
Unfurnished
Garage Spaces
2
Garage YN
true
Heating
Central, Electric
Interior Features
Ceiling Fans(s), High Ceilings, Kitchen/Family Room Combo, Living Room/Dining Room Combo, Primary Bedroom Main Floor, Stone Counters
Internet Address Display YN
true
Internet Automated Valuation Display YN
true
Internet Consumer Comment YN
false
Internet Entire Listing Display YN
true
Laundry Features
Gas Dryer Hookup, In Garage, Washer Hookup
Levels
One
List AOR
Orlando Regional
Living Area Meters
141.96
Living Area Source
Public Records
Living Area Units
Square Feet
Lot Size Acres
0.07
Lot Size Square Feet
2986
Lot Size Square Meters
277
Minimum Lease
No Minimum
Modification Timestamp
2026-01-22T23:39:09.581Z
Monthly Condo Fee Amount
656
Monthly Maint Amount Addition To HOA
225
New Construction YN
false
Occupant Type
Vacant
Other Fees Term
Monthly
Ownership
Fee Simple
Parcel Number
05-22-29-3866-02-120
Pet Restrictions
Buyer to Verify Pet restrictions with HOA
Pets Allowed
Breed Restrictions, Cats OK, Dogs OK
Pool Private YN
true
Postal Code Plus 4
1726
Previous List Price
239000
Price Change Timestamp
2026-01-22T23:38:42.000Z
Public Remarks
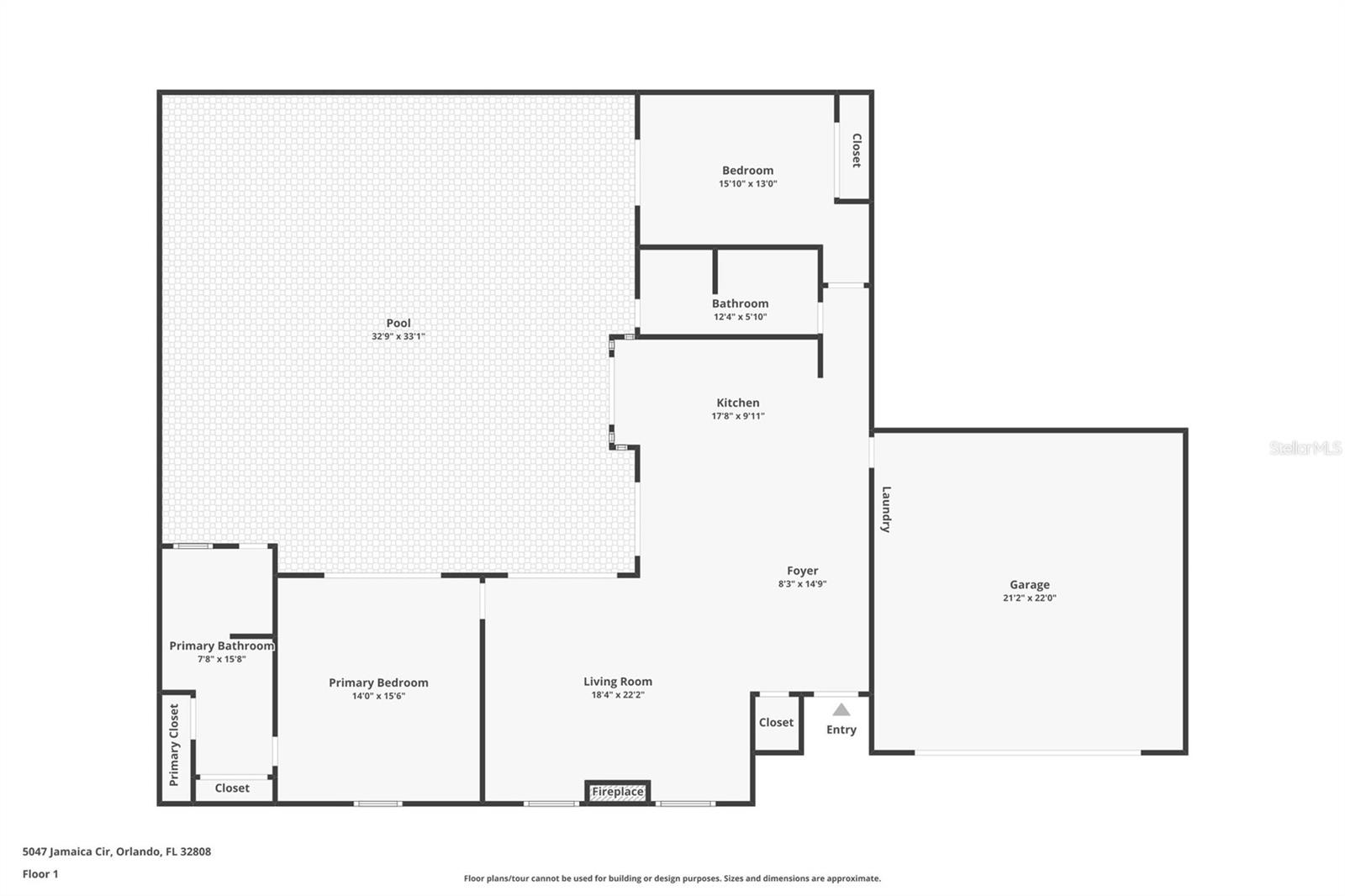
One or more photo(s) has been virtually staged. **As an added incentive, the seller is open to contributing toward the buyer’s HOA fees for up to six months, subject to terms and negotiation.** At the heart of this stunning, fully renovated condo home lies something truly special—your own private, screened-in pool, designed as the centerpiece of the home and visible from every room. The backyard feels like a private oasis retreat, offering a serene courtyard-style setting where you can relax, unwind, and enjoy year-round comfort in complete privacy. This thoughtfully designed floor plan offers over 1, 500 square feet of living space, featuring two spacious bedrooms and two full bathrooms, each with direct access to the pool, creating a seamless indoor-outdoor lifestyle filled with natural light. The primary bathroom is enhanced by a stunning skylight that fills the space with natural light and features an expansive walk-in shower, creating a bright and spa-like retreat. Four expansive sliding glass doors surround the pool, drawing sunlight into every corner of the home and enhancing the open, airy feel. The pool has been fully resurfaced and screened in, making it ideal for everyday enjoyment or entertaining guests. Inside, you’ll find soaring 10-foot ceilings with exposed beams, modern recessed lighting throughout, and a beautiful wood burning fireplace—perfect for cozy Florida evenings. The chef’s kitchen is a showstopper, featuring brand-new stainless steel appliances, a high-end, state-of-the-art refrigerator, and quartz countertops on every surface, including the oversized island. Both bathrooms have been upgraded with LED touchscreen vanity mirrors, adding a sleek, modern touch. Major improvements include new electrical panel, a 2022 water heater, and the peace of mind of a one-year home warranty covering appliances and A/C. Even better, the roof is covered and included by the HOA, eliminating any roof concerns for the new owner. The home also includes a two car remote operated garage, allowing for effortless access while also offering additional storage space for items you prefer stored away! Located in a safe private gated community within the desirable Rosemont neighborhood, this home offers scenic surroundings and views, walking distance from Lake Orlando perfect to take your fur babies on morning or evening walks, in addition it's centralized location provides quick access to I-4, and close proximity to downtown Orlando, shopping, dining, golf courses, and all major attractions. This is more than a home—it’s a private retreat designed for relaxation, style, and convenience, all in one exceptional property.
Public Survey Range
29
Public Survey Section
05
RATIO Current Price By Calculated SqFt
156.09
Road Responsibility
Private Maintained Road
Road Surface Type
Asphalt, Paved
Roof
Tile
Room Count
4
Senior Community YN
false
Sewer
Public Sewer
Showing Requirements
Go Direct, Lock Box Coded, Lock Box Electronic, See Remarks, ShowingTime
Spa YN
false
Status Change Timestamp
2026-01-22T23:31:20.000Z
Stories Total
1
Tax Annual Amount
770
Tax Block
2
Tax Book Number
4-89
Tax Legal Description
ISLAND CLUB AT ROSEMONT CONDO PHASE 2 (JAMAICA) CB 4/137 UNIT 12
Tax Lot
120
Tax Year
2024
Total Acreage
0 to less than 1/4
Total Annual Fees
10572.00
Total Monthly Fees
881.00
Township
22
Universal Property Id
US-12095-N-052229386602120-S-12
Unparsed Address
5047 JAMAICA CIR #12
Utilities
Cable Available, Electricity Available, Sewer Available, Water Available
Water Source
Public
Waterfront YN
false
Window Features
Skylight(s)
Zoning
R-3B/W/RP
Neighborhood Map
Popup

Property Photos
Listing Photo
Listing Photo
Listing Photo
Listing Photo
Listing Photo
Listing Photo
Listing Photo
Listing Photo
Listing Photo
Listing Photo
Listing Photo
Listing Photo
Listing Photo
Listing Photo
Listing Photo
Listing Photo
Listing Photo
Listing Photo
Listing Photo
Listing Photo
Listing Photo
Listing Photo
Listing Photo
Listing Photo
Listing Photo
Listing Photo
Listing Photo
Listing Photo
Listing Photo
Listing Photo
Listing Photo
Listing Photo
Listing Photo
Listing Photo
Listing Photo
Listing Photo
Listing Photo
Listing Photo
Listing Photo
Listing Photo
Listing Photo
Listing Photo
Listing Photo
Listing Photo
Listing Photo
Listing Photo
Listing Photo
Listing Photo
Listing Photo
Listing Photo
Listing Photo
Listing Photo
Listing Photo
Listing Photo
Listing Photo
Listing Photo
Listing Photo
Listing Photo
Listing Photo
Listing Photo
Listing Photo
Listing Photo
Listing Photo
Listing Photo
Listing Photo
Listing Photo
Listing Photo
Listing Photo
Listing Photo
Listing Photo
Listing Photo
Listing Photo
Listing Photo
Listing Photo
Listing Photo
Listing Photo
Listing Photo
Listing Photo
Listing Photo
Listing Photo
Listing Photo
Listing Photo
Listing Photo
Listing Photo
Listing Photo
Listing Photo
Listing Photo
Listing Photo
Listing Photo
Listing Photo
Listing Photo
Listing Photo
Listing Photo
Listing Photo
Listing Photo
Listing Photo
Listing Photo
Listing Photo
Listing Photo
Listing Photo
Listing Photo
Listing Photo
Listing Photo
Listing Photo
Listing Photo
Listing Photo

MLS #MFRO6367891 Listing courtesy of Networth Realty Of Orlando, Llc provided by Stellar MLS.

Similar Listings

$214,900
4262 Lake Underhill Road
Orlando
2BR/2BA
| Active
$214,900
5377 Bamboo Court
Orlando
2BR/2BA
| Pending
$214,975
1612 Sandy Point Square
Orlando
2BR/2BA
| Active
$215,000
7280 Westpointe Boulevard
Orlando
2BR/2BA
| Active



All listing information is deemed reliable but not guaranteed and should be independently verified through personal inspection by appropriate professionals. Listings displayed on this website may be subject to prior sale or removal from sale; availability of any listing should always be independent verified. Listing information is provided for consumer personal, non-commercial use, solely to identify potential properties for potential purchase; all other use is strictly prohibited and may violate relevant federal and state law. The source of the listing data is as follows: Stellar MLS (updated 1/30/26 4:08 AM) |

Listing Search



Translate Tool

Featured Listings
Orlando Real Estate
$829,900
4 BED
3 BATH
Orlando Real Estate
$575,000
2 BED
2 BATH
Orlando Real Estate
$540,000
3 BED
2 BATH
Orlando Real Estate
$950,000
4 BED
3 BATH
Orlando Real Estate
$759,000
5 BED
3 BATH
Orlando Real Estate
$574,900
3 BED
2 BATH
Orlando Real Estate
$1,300,000
5 BED
4 BATH
Orlando Real Estate
$850,000
5 BED
3 BATH
Orlando Real Estate
$479,000
3 BED
3 BATH
Orlando Real Estate
$829,900
4 BED
3 BATH
Real Estate News
  • Coming soon
Contact Kevin Strawter

Wendy Morris LLC

Licensed in the State of Florida
BK 3146762
16797 Broadwater Avenue
Winter Garden, Florida 34787

Your privacy is our utmost concern. We will never sell your personal information. Privacy Policy
©2026 drphillips.info - all rights reserved. | Site Map