407-990-2746
Menu

4410 Brandeis Avenue, Orlando, FL

NEXT
PREV
$415,000

($305/sqft)

List Status: Active
4410 Brandeis Avenue
Orlando, FL 32839


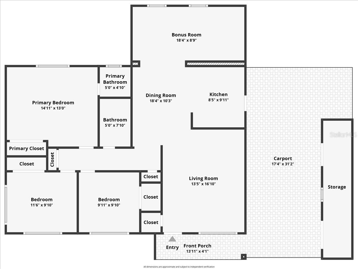
3 beds
1 baths
1359 living sqft
Top Features
  • Subdivision: Medallion Estates
  • Built in  1960
  • Single Family Residence
Description
Welcome to a wonderful opportunity to live in a home in the established Orlando neighborhood of Medallion Estates! This home features upgrades galore and offers both comfort and convenience. This inviting residence features a thoughtfully designed layout with generous living spaces that are ideal for everyday living as well as entertaining. Natural light flows throughout the home, creating a warm and welcoming atmosphere from the moment you step inside. The kitchen is well-positioned as soon as you enter the home from the upgraded glass door off of the carport, offering ample cabinetry, functional counter space, and an easy connection to the main dining area which features a stacked stone wall accent—perfect for gatherings or casual meals. The living room has higher ceilings with exposed beams and two large ceiling fans for keeping the house cool in the hot Florida sun! The bedrooms are comfortably sized and provide a peaceful retreat at the end of the day and are updated with sliding mirror closet doors. There is new plumbing that has replaced the previous cast iron pipes. Both bathrooms are upgraded and the full bathroom offers a built in heater, speaker/wifi exhaust fan/light combo perfect for listening to your favorite music. Step outside to enjoy the outdoor space, ideal for relaxing, gardening, or creating your own backyard oasis. There is an outdoor shower in the carport area which quickly dispenses hot water for a refreshing spa like shower. The backyard features a pergola, fully fenced with podocarpus hedge planted all around the exterior and mature oak trees giving plenty of shade. The shed gives ample storage for all your yard equipment and doubles as extra storage space. There is a 5 zone well irrigation system along with a rain sensor. The home is wired for an electric Vehicle Car charger in the carport and a generator plug that can power the house in the storm season if electricity is lost. All this comes with a ring alarm system with 4 exterior camera
Property Details
Additional Information
Additional Parcels YN
false
Alternate Key Folio Num
292311557104100
Appliances
Cooktop, Dishwasher, Refrigerator
Association Fee Requirement
Optional
Association YN
true
Attached Garage YN
false
Available For Lease YN
1
Bathrooms Total Integer
2
Building Area Source
Owner
Building Area Total
9535
Building Area Total Srch SqM
885.83
Building Area Units
Square Feet
Calculated List Price By Calculated SqFt
305.37
Carport YN
false
Construction Materials
Block
Cooling
Central Air
Country
US
Cumulative Days On Market
89
Current Price
415000.00
Direction Faces
North
Exterior Features
Lighting, Storage
Fireplace YN
false
Flood Zone Code
X
Flood Zone Date
2009-09-25
Flood Zone Panel
12095C0410F
Flooring
Terrazzo
Foundation Details
Slab
Furnished
Unfurnished
Garage YN
false
Heating
Central
Interior Features
Ceiling Fans(s), Solid Surface Counters, Solid Wood Cabinets
Internet Address Display YN
true
Internet Automated Valuation Display YN
false
Internet Consumer Comment YN
false
Internet Entire Listing Display YN
true
Laundry Features
Outside
Levels
One
List AOR
Sarasota - Manatee
Living Area Meters
126.26
Living Area Source
Owner
Living Area Units
Square Feet
Lot Size Acres
0.22
Lot Size Square Feet
9534
Lot Size Square Meters
886
Minimum Lease
No Minimum
Modification Timestamp
2026-03-12T15:59:10.239Z
New Construction YN
false
Occupant Type
Owner
Other Equipment
Irrigation Equipment
Ownership
Fee Simple
Parcel Number
11-23-29-5571-04-100
Pets Allowed
Cats OK, Dogs OK
Pool Private YN
false
Postal Code Plus 4
1468
Previous List Price
420000
Price Change Timestamp
2026-03-12T15:58:15.000Z
Public Survey Range
29
Public Survey Section
11
RATIO Current Price By Calculated SqFt
305.37
Road Surface Type
Concrete
Roof
Shingle
Room Count
7
Senior Community YN
false
Sewer
Septic Tank
Showing Requirements
Appointment Only, Farm Animals on Site, No Lockbox, See Remarks, ShowingTime
Status Change Timestamp
2025-12-13T15:33:08.000Z
Stories Total
1
Tax Annual Amount
2923.19
Tax Block
D
Tax Book Number
Y-3
Tax Legal Description
MEDALLION ESTATES SECTION ONE Y/3 LOT 10BLK D
Tax Lot
10
Tax Year
2024
Total Acreage
0 to less than 1/4
Total Annual Fees
0.00
Total Monthly Fees
0.00
Township
23
Universal Property Id
US-12095-N-112329557104100-R-N
Unparsed Address
4410 BRANDEIS AVE
Utilities
Electricity Connected
Water Source
Public
Waterfront YN
false
Zoning
R-1A
Neighborhood Map
Popup

Property Photos
Listing Photo
Listing Photo
Listing Photo
Listing Photo
Listing Photo
Listing Photo
Listing Photo
Listing Photo
Listing Photo
Listing Photo
Listing Photo
Listing Photo
Listing Photo
Listing Photo
Listing Photo
Listing Photo
Listing Photo
Listing Photo
Listing Photo
Listing Photo
Listing Photo
Listing Photo
Listing Photo
Listing Photo
Listing Photo
Listing Photo
Listing Photo
Listing Photo
Listing Photo
Listing Photo
Listing Photo
Listing Photo
Listing Photo
Listing Photo
Listing Photo
Listing Photo
Listing Photo
Listing Photo
Listing Photo
Listing Photo
Listing Photo
Listing Photo
Listing Photo
Listing Photo
Listing Photo
Listing Photo
Listing Photo
Listing Photo
Listing Photo
Listing Photo
Listing Photo
Listing Photo
Listing Photo
Listing Photo
Listing Photo
Listing Photo
Listing Photo
Listing Photo
Listing Photo
Listing Photo
Listing Photo
Listing Photo
Listing Photo
Listing Photo
Listing Photo
Listing Photo
Listing Photo
Listing Photo
Listing Photo
Listing Photo
Listing Photo
Listing Photo
Listing Photo
Listing Photo

MLS #MFRV4946269 Listing courtesy of Exp Realty Llc provided by Stellar MLS.

Similar Listings

$375,000
1118 Overdale Street
Orlando
3BR/1BA
| Active
$379,000
1632 Pinewood Drive
Orlando
3BR/1BA
| Active
$389,000
1606 Tulane Street
Orlando
3BR/1BA
| Active
$389,900
2154 Lake Christie Drive
Orlando
3BR/1BA
| Pending



All listing information is deemed reliable but not guaranteed and should be independently verified through personal inspection by appropriate professionals. Listings displayed on this website may be subject to prior sale or removal from sale; availability of any listing should always be independent verified. Listing information is provided for consumer personal, non-commercial use, solely to identify potential properties for potential purchase; all other use is strictly prohibited and may violate relevant federal and state law. The source of the listing data is as follows: Stellar MLS (updated 4/1/26 3:47 PM) |

Listing Search



Translate Tool

Featured Listings
Orlando Real Estate
$290,000
2 BED
2 BATH
Turnkey Investment Opportunity in the Heart of Orlando’s Tourism Corridor! Welcome to 6165 Carrier Drive, Unit 3701, an ... Read More
Orlando Real Estate
$170,000
1 BED
1 BATH
Welcome to Point Orlando Resort where this spacious 7th floor, fully furnished 1 bedroom condo awaits you as a luxury va... Read More
Orlando Real Estate
$1,185,000
4 BED
3 BATH
Welcome to 10588 Royal Cypress Way, a professionally designed luxury retreat in the highly sought-after Royal Cypress Pr... Read More
Orlando Real Estate
$525,000
3 BED
2 BATH
RARE TOP FLOOR UNIT WITH WATER VIEW! PRIME INVESTMENT OPPORTUNITY across from Universal Epic Universe — a $6+ Billion de... Read More
Orlando Real Estate
$189,990
3 BED
2 BATH
Great investment opportunity or the perfect place to call home! This beautiful, centrally located condo is nestled in th... Read More
Orlando Real Estate
$220,000
2 BED
2 BATH
** Price just reduced! ** Amazing deal in Dr. Phillips - This Ground Floor (1st Floor) 2-bed/2-bath condo is located in ... Read More
Orlando Real Estate
$1,099,000
5 BED
4 BATH
Under contract-accepting backup offers. Elegant five-bedroom four-bath pool home in gated Kensington Park, Dr. Phillips.... Read More
Orlando Real Estate
$289,000
2 BED
2 BATH
Welcome to Point Orlando Resort where this 9th floor, fully furnished 2 bedroom condo awaits you as a luxury vacation ho... Read More
Orlando Real Estate
$160,000
1 BED
1 BATH
Welcome to Point Orlando Resort where this 9th floor, fully furnished 1 bedroom condo awaits you as a luxury vacation ho... Read More
Orlando Real Estate
$625,000
4 BED
2 BATH
Move-in ready 4-bedroom, 3-bath townhome in the heart of Dr. Phillips—minutes from Universal and approx. 3 minutes to Vo... Read More
Real Estate News
  • Coming soon
Contact Kevin Strawter

Wendy Morris LLC

Licensed in the State of Florida
BK 3146762
16797 Broadwater Avenue
Winter Garden, Florida 34787

Your privacy is our utmost concern. We will never sell your personal information. Privacy Policy
©2026 drphillips.info - all rights reserved. | Site Map