407-990-2746
Menu

2419 Antlia Drive, Orlando, FL

NEXT
PREV
$675,000

($221/sqft)

List Status: Active
2419 Antlia Drive
Orlando, FL 32828


4 beds
3 baths
3052 living sqft
Top Features
  • View: Trees/Woods
  • Subdivision: Avalon Park Northwest Village Ph 02-4
  • Built in  2006
  • Single Family Residence
Description
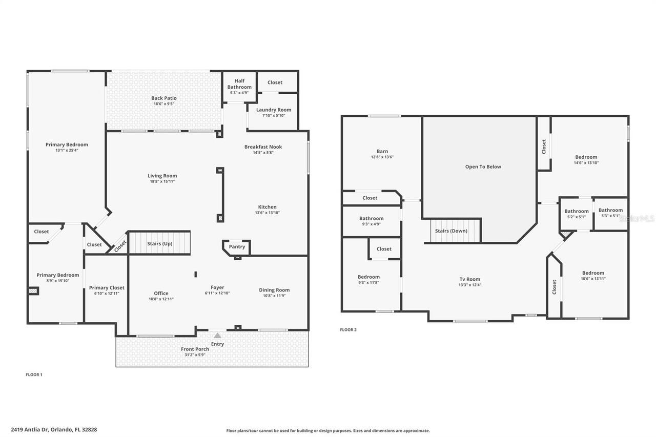
Welcome to this stunning David Weekley–built home in the highly desirable Northwest Village of Avalon Park, offering 3,052 total square feet of beautifully designed living space with 4 bedrooms, 3.5 bathrooms, a loft, and a bonus room. From the moment you arrive, the curb appeal stands out with an attractive paver walkway, lush landscaping with palm trees and a decorative boulder create a welcoming first impression. The full-length covered front patio stretches across the home, providing the perfect place to relax and enjoy the neighborhood. Step inside to a bright and inviting foyer featuring engineered hardwood flooring that extends through to the great room. To the right is the formal dining room, beautifully finished with a chair rail and elegant paintwork, ideal for hosting gatherings. To the left, the formal living room currently functions as a stylish home office, highlighted by an accent wall. The main living area features soaring ceilings and dramatic high windows, complete with electric roll shades operated by a wall switch, filling the home with natural light. A custom wood accent wall adds warmth and character to the space. The open staircase with spindle railing enhances the home’s open feel, and under-stair storage provides practical organization. The kitchen overlooks the main living space and features granite countertops, stainless steel appliances, tile backsplash, and large cabinetry with crown molding, including a glass-front display cabinet. A cozy kitchen nook provides the perfect space for casual dining. The primary suite is conveniently located on the first floor and has been extended to create an oversized retreat with conservation views and French door access to the covered patio. The primary bath offers a large garden tub, glass-enclosed shower, dual vanities, and a custom walk-in closet system. Upstairs, a spacious loft separates the bedrooms, creating ideal privacy and flexibility. One side of the home features two bedrooms connected by a
Property Details
Additional Information
Additional Lease Restrictions
Buyer to verify all measurements, HOA fees, restrictions and school zones independently.
Additional Parcels YN
false
Additional Rooms
Bonus Room, Formal Dining Room Separate, Formal Living Room Separate, Loft
Alternate Key Folio Num
322306100700800
Amenities Additional Fees
Buyer to verify all measurements, HOA fees, restrictions and school zones independently.
Appliances
Dishwasher, Dryer, Microwave, Range, Refrigerator, Washer
Approval Process
Buyer to verify all measurements, HOA fees, restrictions and school zones independently.
Association Amenities
Basketball Court, Cable TV, Clubhouse, Park, Pickleball Court(s), Playground, Pool, Racquetball, Recreation Facilities, Tennis Court(s)
Association Email
hroman@lelandmanagement.com
Association Fee
423
Association Fee Frequency
Quarterly
Association Fee Includes
Cable TV, Pool, Internet, Management, Recreational Facilities
Association Fee Requirement
Required
Association URL
www.AvalonParkPOA.com
Association YN
true
Attached Garage YN
true
Available For Lease YN
1
Bathrooms Total Integer
4
Building Area Source
Public Records
Building Area Total
3931
Building Area Total Srch SqM
365.20
Building Area Units
Square Feet
Calculated List Price By Calculated SqFt
221.17
Carport YN
false
Community Features
Association Recreation - Owned, Clubhouse, Dog Park, Park, Playground, Pool, Racquetball, Sidewalks, Tennis Court(s), Street Lights
Construction Materials
Block, Concrete, Stucco
Cooling
Central Air
Country
US
Current Price
675000.00
Direction Faces
West
Elementary School
Stone Lake Elem
Exterior Features
French Doors, Playground, Rain Gutters, Sidewalk
Fencing
Vinyl
Fireplace YN
false
Flood Zone Code
X
Flood Zone Date
2009-09-25
Flood Zone Panel
12095C0295F
Flooring
Carpet, Hardwood, Tile
Foundation Details
Slab
Furnished
Unfurnished
Garage Dimensions
21x21
Garage Spaces
2
Garage YN
true
Heating
Central, Electric
High School
Timber Creek High
Homestead YN
1
Interior Features
Ceiling Fans(s), Crown Molding, Eat-in Kitchen, High Ceilings, Primary Bedroom Main Floor, Thermostat, Walk-In Closet(s)
Internet Address Display YN
true
Internet Automated Valuation Display YN
true
Internet Consumer Comment YN
true
Internet Entire Listing Display YN
true
Laundry Features
Laundry Room
Lease Restrictions YN
1
Levels
Two
List AOR
Orlando Regional
Living Area Meters
283.54
Living Area Source
Public Records
Living Area Units
Square Feet
Lot Features
Conservation Area, Sidewalk
Lot Size Acres
0.19
Lot Size Square Feet
8400
Lot Size Square Meters
780
Middle Or Junior School
Avalon Middle
Minimum Lease
1-2 Years
Modification Timestamp
2026-03-12T17:26:21.577Z
Monthly HOA Amount
141.00
New Construction YN
false
Occupant Type
Vacant
Other Equipment
Irrigation Equipment, Playground
Ownership
Fee Simple
Parcel Number
06-23-32-1007-00-800
Patio And Porch Features
Covered, Front Porch, Rear Porch, Screened
Pet Restrictions
Buyer must verify with the HOA on all rules and regulations.
Pets Allowed
Yes
Pool Private YN
false
Postal Code Plus 4
9306
Public Survey Range
32
Public Survey Section
06
RATIO Current Price By Calculated SqFt
221.17
Realtor Info
As-Is, Sign
Road Surface Type
Asphalt, Paved
Roof
Shingle
Room Count
10
Senior Community YN
false
Sewer
Public Sewer
Showing Requirements
Sentri Lock Box, See Remarks, ShowingTime
Status Change Timestamp
2026-03-12T15:48:07.000Z
Stories Total
2
Tax Annual Amount
3739.04
Tax Block
-
Tax Book Number
63-94
Tax Legal Description
AVALON PARK NORTHWEST VILLAGE PHASES 2, 3& 4 63/94 LOT 80
Tax Lot
80
Tax Year
2024
Total Acreage
0 to less than 1/4
Total Annual Fees
1692.00
Total Monthly Fees
141.00
Township
23
Universal Property Id
US-12095-N-062332100700800-R-N
Unparsed Address
2419 ANTLIA DR
Utilities
BB/HS Internet Available, Cable Available, Electricity Connected, Public, Sewer Connected, Water Connected
Vegetation
Trees/Landscaped
Water Source
Public
Waterfront YN
false
Window Features
Blinds, Drapes, Rods
Zoning
P-D
Neighborhood Map
Popup

Property Photos
Listing Photo
Listing Photo
Listing Photo
Listing Photo
Listing Photo
Listing Photo
Listing Photo
Listing Photo
Listing Photo
Listing Photo
Listing Photo
Listing Photo
Listing Photo
Listing Photo
Listing Photo
Listing Photo
Listing Photo
Listing Photo
Listing Photo
Listing Photo
Listing Photo
Listing Photo
Listing Photo
Listing Photo
Listing Photo
Listing Photo
Listing Photo
Listing Photo
Listing Photo
Listing Photo
Listing Photo
Listing Photo
Listing Photo
Listing Photo
Listing Photo
Listing Photo
Listing Photo
Listing Photo
Listing Photo
Listing Photo
Listing Photo
Listing Photo
Listing Photo
Listing Photo
Listing Photo
Listing Photo
Listing Photo
Listing Photo
Listing Photo
Listing Photo
Listing Photo
Listing Photo
Listing Photo
Listing Photo
Listing Photo
Listing Photo
Listing Photo
Listing Photo
Listing Photo
Listing Photo
Listing Photo
Listing Photo
Listing Photo
Listing Photo
Listing Photo
Listing Photo
Listing Photo
Listing Photo
Listing Photo
Listing Photo
Listing Photo
Listing Photo
Listing Photo
Listing Photo
Listing Photo
Listing Photo
Listing Photo
Listing Photo
Listing Photo
Listing Photo
Listing Photo
Listing Photo
Listing Photo
Listing Photo

MLS #MFRO6388970 Listing courtesy of The Wilkins Way Llc provided by Stellar MLS.

Similar Listings

$610,000
466 Pepin Drive
Orlando
4BR/3BA
| Active
$610,000
3450 Puxton Drive
Orlando
4BR/3BA
| Active
$614,000
9631 Renwick Court
Orlando
4BR/3BA
| Pending
$614,990
14927 Faversham Circle
Orlando
4BR/3BA
| Active



All listing information is deemed reliable but not guaranteed and should be independently verified through personal inspection by appropriate professionals. Listings displayed on this website may be subject to prior sale or removal from sale; availability of any listing should always be independent verified. Listing information is provided for consumer personal, non-commercial use, solely to identify potential properties for potential purchase; all other use is strictly prohibited and may violate relevant federal and state law. The source of the listing data is as follows: Stellar MLS (updated 3/12/26 6:34 PM) |

Listing Search



Translate Tool

Featured Listings
Orlando Real Estate
$985,000
4 BED
3 BATH
Sophisticated Living Near Arnold Palmer’s Bay Hill Club. Discover timeless elegance and effortless living in this distin... Read More
Orlando Real Estate
$949,000
5 BED
3 BATH
Under contract-accepting backup offers. Welcome to this spacious one-story residence in the Torey Pines community. On ap... Read More
Orlando Real Estate
$1,350,000
4 BED
4 BATH
Welcome to 10475 Royal Cypress Way, a beautifully maintained water view home in the gated community of Royal Cypress Pre... Read More
Orlando Real Estate
$975,000
3 BED
2 BATH
Bay Hill Village, a gated community of single-family houses off of Apopka-Vineland Road in Southwest Orlando focuses on ... Read More
Orlando Real Estate
$457,500
2 BED
2 BATH
Under contract-accepting backup offers. Welcome to this beautifully maintained 2-bedroom, 2-bathroom condo in the highly... Read More
Orlando Real Estate
$585,000
3 BED
2 BATH
Welcome to luxury living in the exclusive guard-gated community of Vizcaya, ideally located in the prestigious Dr. Phill... Read More
Orlando Real Estate
$1,299,900
6 BED
4 BATH
Located in the beautiful, gated community of Phillips Grove, this STUNNING home provides ample living space and a range ... Read More
Orlando Real Estate
$1,399,000
5 BED
4 BATH
Stunning Yorkshire floor plan built by Pulte Homes in 2024, located in the highly desirable Parkview Reserve community i... Read More
Orlando Real Estate
$675,000
5 BED
3 BATH
One or more photo(s) has been virtually staged. Positioned on a large corner lot in the heart of Dr. Phillips, this 5-be... Read More
Orlando Real Estate
$1,100,000
5 BED
5 BATH
Step into a world of elegance at 7689 Toscana Boulevard in Doctor Phillips. This stylish and modern residence, located w... Read More
Real Estate News
  • Coming soon
Contact Kevin Strawter

Wendy Morris LLC

Licensed in the State of Florida
BK 3146762
16797 Broadwater Avenue
Winter Garden, Florida 34787

Your privacy is our utmost concern. We will never sell your personal information. Privacy Policy
©2026 drphillips.info - all rights reserved. | Site Map