407-990-2746
Menu

16583 Cedar Crest Drive, Orlando, FL

NEXT
PREV
$274,900

($208/sqft)

List Status: Pending
16583 Cedar Crest Drive
Orlando, FL 32828


2 beds
2 baths
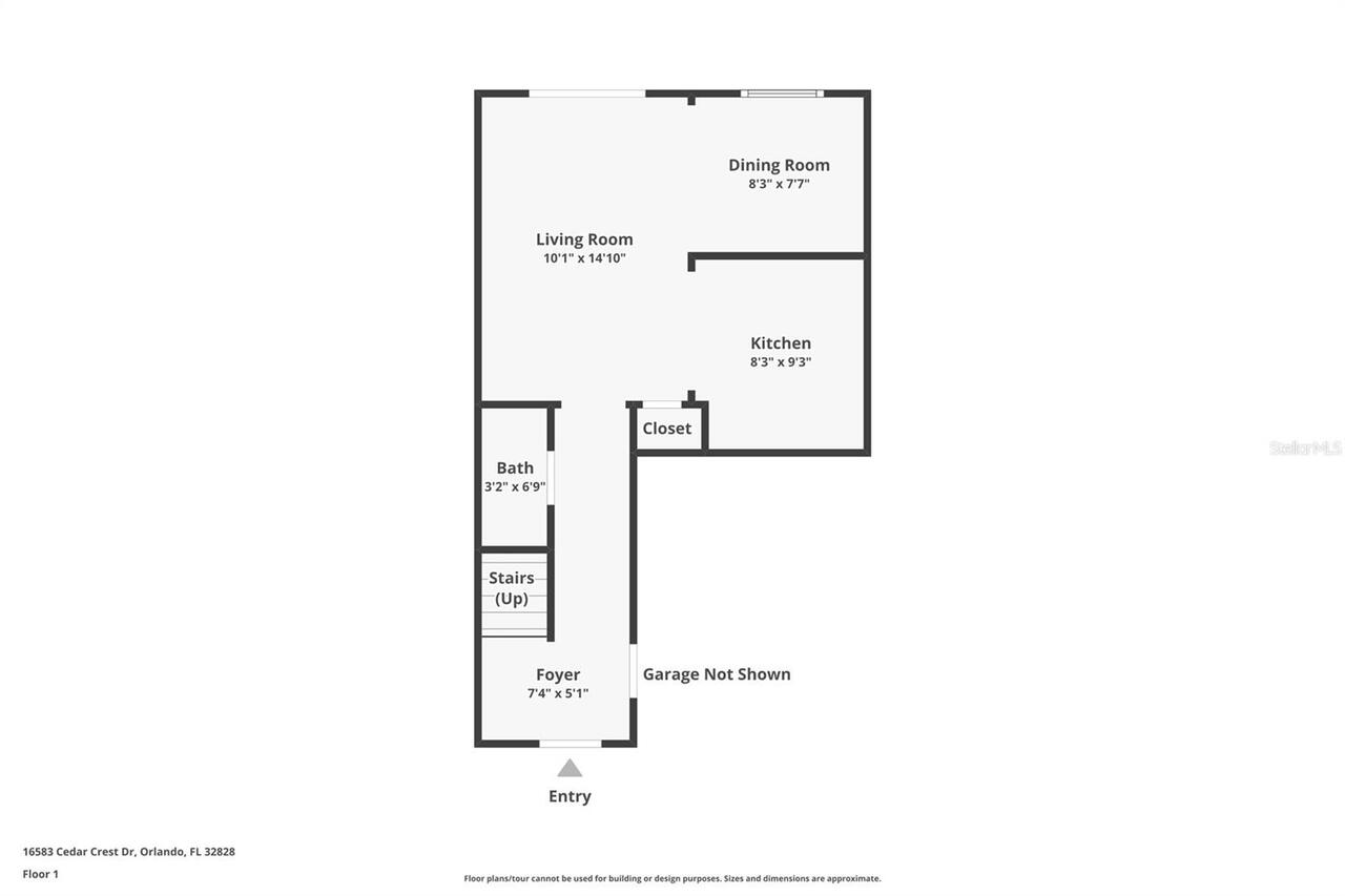
1322 living sqft
Top Features
  • Subdivision: Timber Pointe Ph 02
  • Built in  2006
  • Townhouse
Description
Under contract-accepting backup offers. Welcome to this beautifully maintained townhome located in a highly desirable community, offering the perfect blend of comfort, style, and convenience. Step inside to a bright and airy open-concept living space featuring elegant arched architectural details, tile flooring, and abundant natural light that create a warm and inviting atmosphere. The spacious kitchen is designed for both everyday living and entertaining, featuring rich wood cabinetry, a breakfast bar, and a functional layout that flows seamlessly into the dining and living areas. From the living room, step through sliding glass doors to your private patio, an ideal space to enjoy morning coffee or unwind in the evening. Upstairs, you’ll find two generously sized bedrooms, each with its own en suite bathroom, providing comfort and privacy for residents and guests alike. The primary suite serves as a relaxing retreat with large windows and ample closet space. This well-cared-for home also features a one-car garage and low-maintenance living, making it an excellent option for first-time homebuyers, investors, or those looking to downsize without sacrificing style or functionality. Ideally located near parks, shopping, dining, and top-rated schools, this townhome offers exceptional value in a convenient location. Don’t miss the opportunity to make this beautiful home yours—schedule your private showing today!
Property Details
Additional Information
Additional Lease Restrictions
Verify with the HOA: Buyers are responsible to confirm by referencing the HOA CCR, by contacting the HOA management company and/or municipality during inspection period.
Additional Parcels YN
false
Appliances
Dishwasher, Dryer, Microwave, Range, Refrigerator, Washer
Association Email
bwilson@sentrymgt.com
Association Fee
345
Association Fee Frequency
Monthly
Association Fee Includes
Pool, Maintenance Grounds
Association Fee Requirement
Required
Association YN
true
Attached Garage YN
true
Available For Lease YN
1
Bathrooms Total Integer
3
Building Area Source
Public Records
Building Area Total
1322
Building Area Total Srch SqM
122.82
Building Area Units
Square Feet
Calculated List Price By Calculated SqFt
207.94
Carport YN
false
Community Features
Community Mailbox, Deed Restrictions, Gated Community - No Guard, Playground, Pool
Construction Materials
Block
Contract Status
Financing, Inspections
Cooling
Central Air
Country
US
Cumulative Days On Market
6
Current Price
274900.00
Direction Faces
Northwest
Elementary School
Timber Lakes Elementary
Expected Closing Date
2026-05-01T00:00:00.000
Exterior Features
Lighting, Sliding Doors
Fireplace YN
false
Flood Zone Code
X
Flood Zone Date
2009-09-25
Flood Zone Panel
12095C0295F
Flooring
Carpet, Tile
Foundation Details
Slab
Furnished
Unfurnished
Garage Dimensions
10x10
Garage Spaces
1
Garage YN
true
Heating
Central
High School
Timber Creek High
Homestead YN
1
Interior Features
Ceiling Fans(s), Window Treatments
Internet Address Display YN
true
Internet Automated Valuation Display YN
false
Internet Consumer Comment YN
false
Internet Entire Listing Display YN
true
Laundry Features
Inside
Lease Restrictions YN
1
Levels
Two
List AOR
Orlando Regional
Living Area Meters
122.82
Living Area Source
Public Records
Living Area Units
Square Feet
Lot Size Acres
0.04
Lot Size Square Feet
1760
Lot Size Square Meters
164
Middle Or Junior School
Timber Springs Middle
Minimum Lease
1-2 Years
Modification Timestamp
2026-04-21T16:27:10.177Z
Monthly HOA Amount
345.00
New Construction YN
false
Occupant Type
Owner
Ownership
Fee Simple
Parcel Number
31-22-32-7901-02-150
Pet Restrictions
Buyer to confirm any pet restrictions with HOA/City/County during inspection period.
Pets Allowed
Breed Restrictions
Pool Private YN
false
Postal Code Plus 4
6708
Public Survey Range
32
Public Survey Section
31
Purchase Contract Date
2026-03-18
RATIO Current Price By Calculated SqFt
207.94
Road Surface Type
Asphalt
Roof
Shingle
Room Count
5
Senior Community YN
false
Sewer
Public Sewer
Showing Requirements
ShowingTime
Status Change Timestamp
2026-03-18T19:48:08.000Z
Tax Annual Amount
2367.96
Tax Block
2
Tax Book Number
63-120
Tax Legal Description
TIMBER POINTE PHASE 2 63/120 LOT 215
Tax Lot
215
Tax Year
2024
Total Acreage
0 to less than 1/4
Total Annual Fees
4752.00
Total Monthly Fees
396.00
Township
22
Universal Property Id
US-12095-N-312232790102150-R-N
Unparsed Address
16583 CEDAR CREST DR
Utilities
Electricity Connected
Water Source
Public
Waterfront YN
false
Zoning
P-D
Neighborhood Map
Popup

Property Photos
Listing Photo
Listing Photo
Listing Photo
Listing Photo
Listing Photo
Listing Photo
Listing Photo
Listing Photo
Listing Photo
Listing Photo
Listing Photo
Listing Photo
Listing Photo
Listing Photo
Listing Photo
Listing Photo
Listing Photo
Listing Photo
Listing Photo
Listing Photo
Listing Photo
Listing Photo
Listing Photo
Listing Photo
Listing Photo
Listing Photo
Listing Photo
Listing Photo
Listing Photo
Listing Photo
Listing Photo
Listing Photo
Listing Photo
Listing Photo
Listing Photo
Listing Photo
Listing Photo
Listing Photo

MLS #MFRO6389617 Listing courtesy of Exp Realty Llc provided by Stellar MLS.

Similar Listings

$247,900
6384 Raleigh Street
Orlando
2BR/2BA
| Active
$247,999
3338 Robert Trent Jones Drive
Orlando
2BR/2BA
| Active
$248,000
2413 Tack Room Lane
Orlando
2BR/2BA
| Active
$248,500
3664 Wilshire Way Road
Orlando
2BR/2BA
| Active



All listing information is deemed reliable but not guaranteed and should be independently verified through personal inspection by appropriate professionals. Listings displayed on this website may be subject to prior sale or removal from sale; availability of any listing should always be independent verified. Listing information is provided for consumer personal, non-commercial use, solely to identify potential properties for potential purchase; all other use is strictly prohibited and may violate relevant federal and state law. The source of the listing data is as follows: Stellar MLS (updated 5/2/26 5:55 AM) |

Listing Search



Translate Tool

Featured Listings
Orlando Real Estate
$1,400,000
5 BED
4 BATH
Unbeatable location in the heart of Dr. Phillips! Located in a gated community surrounded by vibrant shopping, dining, a... Read More
Orlando Real Estate
$628,000
4 BED
2 BATH
One or more photo(s) has been virtually staged. This newly renovated, move-in ready Dr. Phillips home is waiting for you... Read More
Orlando Real Estate
$1,000,000
5 BED
4 BATH
Welcome to 10319 Lavande Dr, located in an exclusive gated enclave of just 36 homes in Provence at Lake Sheen—just minut... Read More
Orlando Real Estate
$533,000
3 BED
2 BATH
Welcome to this beautiful 3 bedrooms 2.5 bathrooms townhome, in the gated community of Toscana located in the heart of D... Read More
Orlando Real Estate
$1,198,190
4 BED
4 BATH
Parkview Reserve is a highly anticipated neighborhood in the heart of coveted Dr. Phillips! Located off Daryl Carter Par... Read More
Orlando Real Estate
$935,000
3 BED
3 BATH
One or more photo(s) has been virtually staged. Rare opportunity to own a 2024 Pulte-built home in Dr. Phillips priced U... Read More
Orlando Real Estate
$945,000
4 BED
3 BATH
Sophisticated Living Near Arnold Palmer’s Bay Hill Club. Discover timeless elegance and effortless living in this distin... Read More
Orlando Real Estate
$550,000
3 BED
2 BATH
Settle into life at 9017 Esguerra Ct, a beautifully updated single-story home in Bay Lakes at Granada with a clean, mode... Read More
Orlando Real Estate
$575,000
3 BED
2 BATH
One or more photo(s) has been virtually staged. Modern, move-in ready 3-bed, 2-bath pool home with a huge backyard! This... Read More
Orlando Real Estate
$649,900
4 BED
2 BATH
Fantastic 4-Bedrooms, 2 Bathrooms Home Featuring a Spacious Layout and a Screened Lanai, Located in the Desirable Orange... Read More
Real Estate News
  • Coming soon
Contact Kevin Strawter

Wendy Morris LLC

Licensed in the State of Florida
BK 3146762
16797 Broadwater Avenue
Winter Garden, Florida 34787

Your privacy is our utmost concern. We will never sell your personal information. Privacy Policy
©2026 drphillips.info - all rights reserved. | Site Map