407-990-2746
Menu

15204 Windmill Harbor Court, Orlando, FL

NEXT
PREV
$347,400

($202/sqft)

List Status: Active
15204 Windmill Harbor Court
Orlando, FL 32828


3 beds
2 baths
1720 living sqft
Top Features
  • View: Trees/Woods
  • Subdivision: Spring Isle
  • Built in  2006
  • Townhouse
Description
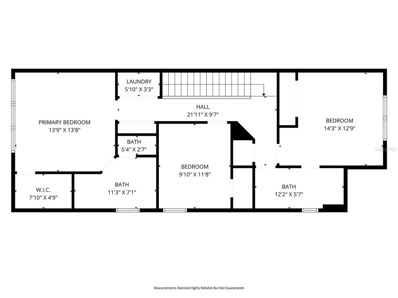
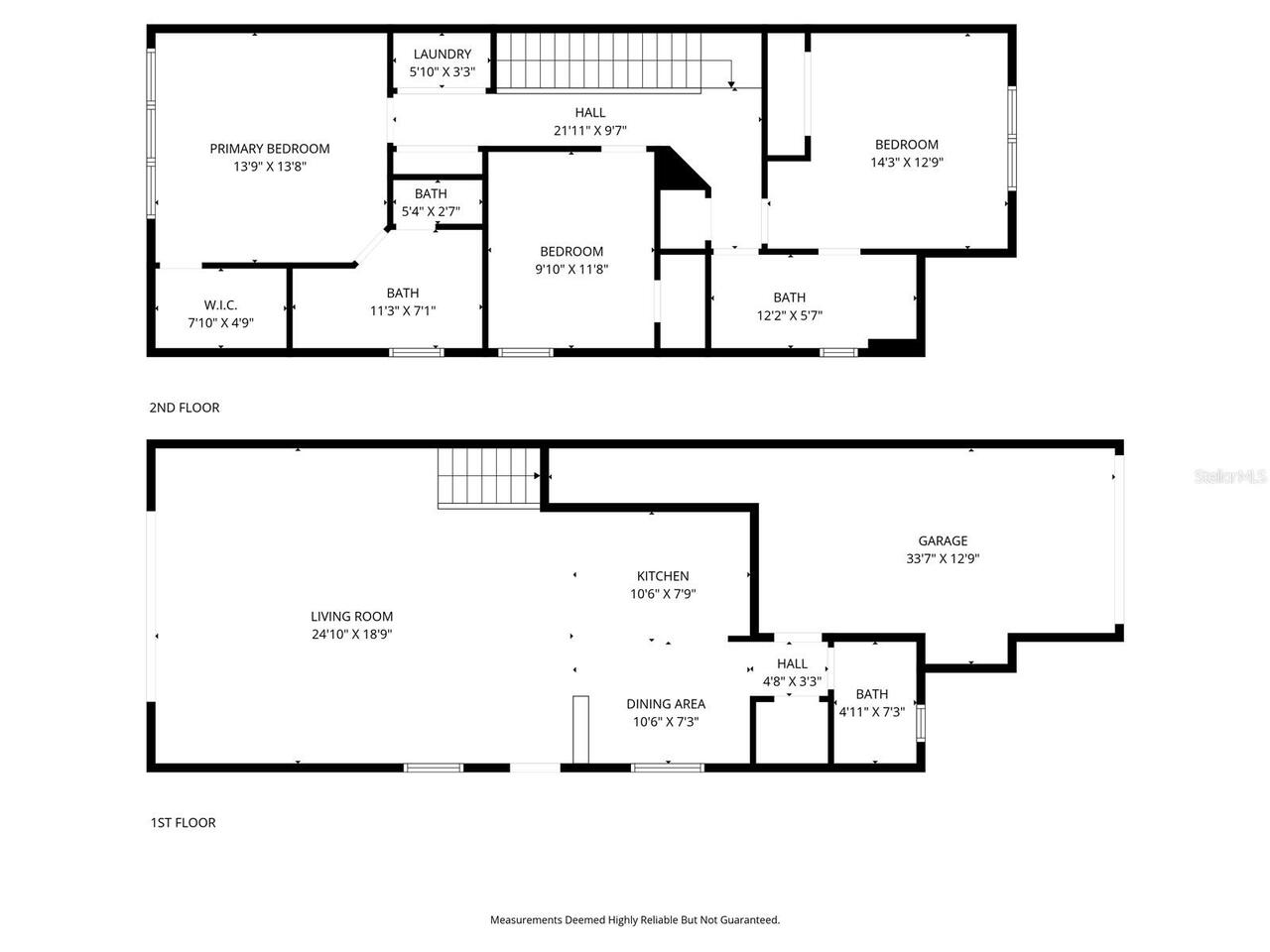
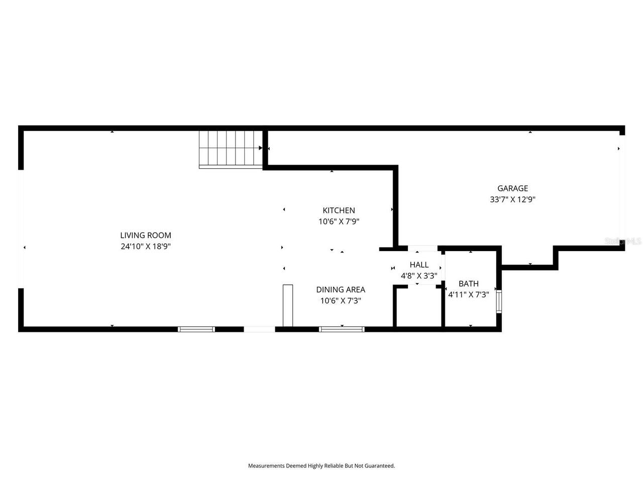
Elegantly appointed end-unit townhome located within the exclusive, guard-gated community of Spring Isle. This beautifully designed residence features a spacious open-concept floor plan with 3 bedrooms and 2.5 bathrooms, enhanced by no rear neighbors for exceptional privacy. The light-filled living and dining areas offer a seamless flow, ideal for both refined entertaining and everyday living. Upstairs, the owner’s retreat provides a serene escape, complete with a generous walk-in closet and a spa-inspired bath featuring a deep soaking tub and dual-sink vanity. Two additional bedrooms, a full bath, and a convenient upstairs laundry area complete the second level. Residents enjoy resort-style amenities, including a luxury swimming pool, clubhouse, playground, tennis and basketball courts, and an active community lifestyle. The home is zoned for A-rated schools, and recent community updates include a new roof and exterior paint (2021). Ideally situated near Waterford Lakes Town Center and Downtown Avalon, with easy access to UCF and major highways (408, 417, 528). HOA-included lawn maintenance offers a refined, low-maintenance lifestyle in one of East Orlando’s most desirable gated communities.
Property Details
Additional Information
Additional Lease Restrictions
Verify with HOA
Additional Parcels YN
false
Appliances
Dishwasher, Disposal, Dryer, Electric Water Heater, Microwave, Range, Refrigerator, Washer
Association Email
springisleoffice@gmail.com
Association Fee
256.5
Association Fee Frequency
Monthly
Association Fee Includes
Guard - 24 Hour, Pool, Maintenance Structure, Maintenance Grounds
Association Fee Requirement
Required
Association URL
https://artemislifestyles.com/
Association YN
true
Attached Garage YN
true
Available For Lease YN
1
Bathrooms Total Integer
3
Building Area Source
Public Records
Building Area Total
2076
Building Area Total Srch SqM
192.87
Building Area Units
Square Feet
Calculated List Price By Calculated SqFt
201.98
Carport YN
false
Community Features
Park, Playground, Pool, Tennis Court(s)
Construction Materials
Stucco
Cooling
Central Air
Country
US
Cumulative Days On Market
65
Current Price
347400.00
Direction Faces
Northwest
Elementary School
Timber Lakes Elementary
Exterior Features
Rain Gutters
Fireplace YN
false
Flood Zone Code
X
Flooring
Carpet, Ceramic Tile, Laminate
Foundation Details
Slab
Furnished
Unfurnished
Garage Spaces
1
Garage YN
true
Heating
Central, Electric
High School
Timber Creek High
Interior Features
Ceiling Fans(s), PrimaryBedroom Upstairs
Internet Address Display YN
true
Internet Automated Valuation Display YN
true
Internet Consumer Comment YN
true
Internet Entire Listing Display YN
true
Laundry Features
Inside, Laundry Closet, Upper Level
Lease Restrictions YN
1
Levels
Two
List AOR
Orlando Regional
Living Area Meters
159.79
Living Area Source
Public Records
Living Area Units
Square Feet
Lot Size Acres
0.09
Lot Size Square Feet
3800
Lot Size Square Meters
353
Middle Or Junior School
Timber Springs Middle
Minimum Lease
8-12 Months
Modification Timestamp
2026-03-15T18:55:09.407Z
Monthly HOA Amount
256.50
New Construction YN
false
Occupant Type
Vacant
Other Equipment
Irrigation Equipment
Ownership
Fee Simple
Parcel Number
30-22-32-7897-03-400
Pet Restrictions
Verify with HOA
Pets Allowed
Yes
Pool Private YN
false
Postal Code Plus 4
6835
Previous List Price
349900
Price Change Timestamp
2026-03-15T18:55:03.000Z
Property Description
End Unit
Public Survey Range
32
Public Survey Section
30
RATIO Current Price By Calculated SqFt
201.98
Road Surface Type
Asphalt
Roof
Shingle
Room Count
6
Senior Community YN
false
Sewer
Public Sewer
Showing Requirements
Appointment Only, Combination Lock Box, Lock Box Coded, See Remarks, ShowingTime
Status Change Timestamp
2026-02-05T23:08:43.000Z
Stories Total
2
Tax Annual Amount
5354.5
Tax Block
3
Tax Book Number
62-102
Tax Legal Description
SPRING ISLE UNIT 3 62/102 LOT 340
Tax Lot
340
Tax Year
2025
Total Acreage
0 to less than 1/4
Total Annual Fees
3078.00
Total Monthly Fees
256.50
Township
22
Universal Property Id
US-12095-N-302232789703400-R-N
Unparsed Address
15204 WINDMILL HARBOR CT
Utilities
Cable Available, Electricity Available, Sewer Available, Water Available
Water Source
Public
Waterfront YN
false
Zoning
P-D
Neighborhood Map
Popup

Property Photos
Listing Photo
Listing Photo
Listing Photo
Listing Photo
Listing Photo
Listing Photo
Listing Photo
Listing Photo
Listing Photo
Listing Photo
Listing Photo
Listing Photo
Listing Photo
Listing Photo
Listing Photo
Listing Photo
Listing Photo
Listing Photo
Listing Photo
Listing Photo
Listing Photo
Listing Photo
Listing Photo
Listing Photo
Listing Photo
Listing Photo
Listing Photo
Listing Photo
Listing Photo
Listing Photo
Listing Photo
Listing Photo
Listing Photo
Listing Photo
Listing Photo
Listing Photo
Listing Photo
Listing Photo
Listing Photo
Listing Photo
Listing Photo
Listing Photo
Listing Photo
Listing Photo
Listing Photo
Listing Photo
Listing Photo
Listing Photo
Listing Photo
Listing Photo
Listing Photo
Listing Photo
Listing Photo
Listing Photo
Listing Photo
Listing Photo
Listing Photo
Listing Photo
Listing Photo
Listing Photo
Listing Photo
Listing Photo
Listing Photo
Listing Photo
Listing Photo
Listing Photo
Listing Photo
Listing Photo
Listing Photo
Listing Photo
Listing Photo
Listing Photo
Listing Photo
Listing Photo
Listing Photo
Listing Photo
Listing Photo
Listing Photo
Listing Photo
Listing Photo
Listing Photo
Listing Photo
Listing Photo
Listing Photo

MLS #MFRO6372179 Listing courtesy of Ants Realty Llc provided by Stellar MLS.

Similar Listings

$313,900
10193 Ridgebloom Avenue
Orlando
3BR/2BA
| Pending
$314,000
3207 Chariot Place
Orlando
3BR/2BA
| Active
$314,900
13875 Glasser Avenue
Orlando
3BR/2BA
| Active
$314,900
6503 Meritmoor Circle
Orlando
3BR/2BA
| Pending



All listing information is deemed reliable but not guaranteed and should be independently verified through personal inspection by appropriate professionals. Listings displayed on this website may be subject to prior sale or removal from sale; availability of any listing should always be independent verified. Listing information is provided for consumer personal, non-commercial use, solely to identify potential properties for potential purchase; all other use is strictly prohibited and may violate relevant federal and state law. The source of the listing data is as follows: Stellar MLS (updated 3/16/26 3:58 AM) |

Listing Search



Translate Tool

Featured Listings
Orlando Real Estate
$395,000
4 BED
3 BATH
**Investor Opportunity in Sought-After Newbury Park – Tenant in Place!** Great opportunity to own a **4-bedroom, 3-bath ... Read More
Orlando Real Estate
$475,000
3 BED
2 BATH
This property is a one story townhouse located in the desirable Sandpointe Townhomes community in the Dr. Phillips area ... Read More
Orlando Real Estate
$909,900
4 BED
3 BATH
Welcome to Torey Pines, one of the most established and sought-after communities in the heart of Dr. Phillips. Situated ... Read More
Orlando Real Estate
$555,000
3 BED
2 BATH
A stunning residence tucked away on a quiet cul-de-sac in one of Southwest Orlando’s most desirable communities. This be... Read More
Orlando Real Estate
$899,000
4 BED
3 BATH
Welcome to 9229 Wickham Way, a fully remodeled 4 bedroom, 3 bathroom pool home offering approximately 3,000 square feet ... Read More
Orlando Real Estate
$548,000
3 BED
2 BATH
Enjoy the relaxed lifestyle of Granada Villas! This exceptional Orlando location offers easy-maintenance living just ste... Read More
Orlando Real Estate
$1,139,000
4 BED
2 BATH
One or more photo(s) has been virtually staged. Welcome to your dream home in the heart of historic Dr. Phillips, inside... Read More
Orlando Real Estate
$945,000
3 BED
3 BATH
One or more photo(s) has been virtually staged. This Pulte-built home in Dr. Phillips offered UNDER APPRAISED VALUE, pre... Read More
Orlando Real Estate
$850,000
5 BED
3 BATH
Located in highly desirable Dr. Phillips, this spacious 5-bedroom, 3-bath home offers a flexible and functional layout i... Read More
Orlando Real Estate
$1,050,000
4 BED
2 BATH
Stunning single-story Toll Brothers home in the desirable 24-hour guard-gated community of Royal Cypress Preserve. This ... Read More
Real Estate News
  • Coming soon
Contact Kevin Strawter

Wendy Morris LLC

Licensed in the State of Florida
BK 3146762
16797 Broadwater Avenue
Winter Garden, Florida 34787

Your privacy is our utmost concern. We will never sell your personal information. Privacy Policy
©2026 drphillips.info - all rights reserved. | Site Map