407-990-2746
Menu

1362 Stearman Court Unit: Unit: 20, Orlando, FL

NEXT
PREV
$254,000

($223/sqft)

List Status: Active
1362 Stearman Court
Orlando, FL 32825


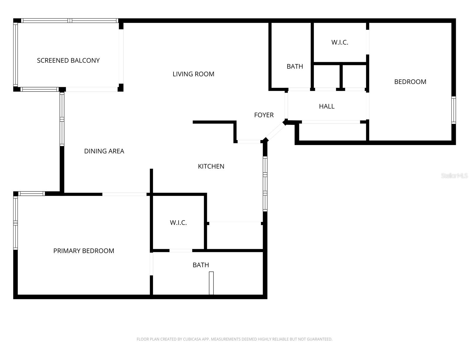
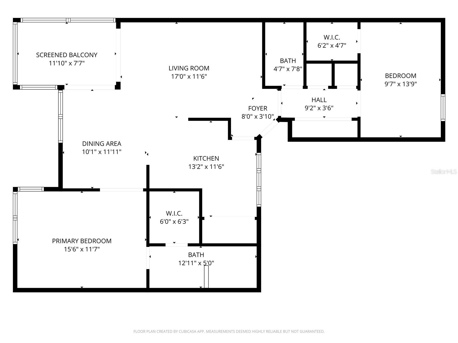
2 beds
2 baths
1137 living sqft
Top Features
  • Subdivision: R/c World Condo
  • Built in  1985
  • Condominium
Description
This beautiful 2-bedroom, 2-bath condo offers stylish, move-in-ready living in a prime East Orlando location. Situated on the 2nd floor with vaulted ceilings and no neighbors above, this light and bright unit features luxury vinyl plank flooring, updated lighting throughout, and an inviting open floor plan perfect for relaxing or entertaining. The refreshed kitchen shines with solid wood cabinetry, granite countertops, and stainless steel appliances. In this desirable split bedroom floor plan, bathrooms have been fully refreshed with matching solid wood cabinets, granite counters, and modern fixtures. The spacious primary suite boasts a double-door entry, walk-in closet, and a beautifully updated en suite with a sliding barn door, dual vanities, and a walk-in shower. Enjoy indoor-outdoor living on the screened balcony—an ideal spot for your morning coffee. Additional perks include washer & dryer, an assigned parking space, and a private exterior storage closet. The community offers fantastic amenities including a sparkling pool, two lighted tennis courts, a picnic pavilion, tot lot, and a fishing pond. ROOF 2022 and HVAC 2021. All of this just minutes from Valencia College East Campus, UCF, Waterford Lakes Town Center, abundant dining and entertainment options, Orlando International Airport, and easy access to 407, 417, and 528. Perfect as a primary residence or a smart rental investment—schedule your private showing today!
Property Details
Additional Information
Additional Lease Restrictions
verify with HOA. Annual Rentals only.
Additional Parcels YN
false
Additional Rooms
Inside Utility, Storage Rooms
Alternate Key Folio Num
312232734403200
Appliances
Dishwasher, Microwave, Range, Refrigerator
Association Amenities
Playground, Pool, Tennis Court(s)
Association Fee
355.83
Association Fee Frequency
Monthly
Association Fee Includes
Pool
Association Fee Requirement
Required
Association YN
true
Available For Lease YN
1
Bathrooms Total Integer
2
Building Area Source
Public Records
Building Area Total
1137
Building Area Total Srch SqM
105.63
Building Area Units
Square Feet
Calculated List Price By Calculated SqFt
223.39
Carport YN
false
Community Features
Playground, Pool, Sidewalks, Tennis Court(s)
Construction Materials
Block, Stucco
Cooling
Central Air
Country
US
Cumulative Days On Market
37
Current Price
254000.00
Direction Faces
Southwest
Elementary School
Cypress Springs Elem
Exterior Features
Sidewalk
Fireplace YN
false
Flood Zone Code
X
Floor Number
2
Flooring
Luxury Vinyl
Foundation Details
Slab
Furnished
Unfurnished
Garage YN
false
Heating
Central
High School
University High
Homestead YN
1
Interior Features
Ceiling Fans(s), High Ceilings, Open Floorplan
Internet Address Display YN
true
Internet Automated Valuation Display YN
true
Internet Consumer Comment YN
true
Internet Entire Listing Display YN
true
Laundry Features
In Kitchen, Inside, Laundry Closet, Same Floor As Condo Unit
Lease Restrictions YN
1
Levels
One
List AOR
Orlando Regional
Living Area Meters
105.63
Living Area Source
Public Records
Living Area Units
Square Feet
Lot Size Acres
0.04
Lot Size Square Feet
1628
Lot Size Square Meters
151
Max Pet Weight
999
Middle Or Junior School
Legacy Middle
Minimum Lease
1-2 Years
Modification Timestamp
2026-02-10T19:44:09.388Z
Monthly HOA Amount
355.83
New Construction YN
false
Occupant Type
Vacant
Other Structures
Storage
Ownership
Condominium
Parcel Number
32-22-31-7344-03-200
Patio And Porch Features
Patio, Rear Porch, Screened
Pet Restrictions
verify with HOA
Pets Allowed
Yes
Pool Private YN
false
Postal Code Plus 4
8807
Previous List Price
259000
Price Change Timestamp
2026-02-10T19:43:08.000Z
Public Survey Range
31
Public Survey Section
32
RATIO Current Price By Calculated SqFt
223.39
Realtor Info
As-Is, No Sign
Road Surface Type
Paved
Roof
Shingle
Room Count
6
Senior Community YN
false
Sewer
Public Sewer
Showing Requirements
ShowingTime
Status Change Timestamp
2026-01-24T14:12:39.000Z
Stories Total
2
Tax Annual Amount
388.48
Tax Block
3
Tax Book Number
11-54
Tax Legal Description
R/C WORLD CONDO NO 1 CB 11/54 UNIT 20 BLDG 3
Tax Lot
200
Tax Year
2024
Total Annual Fees
4269.96
Total Monthly Fees
355.83
Township
22
Universal Property Id
US-12095-N-322231734403200-S-20
Unparsed Address
1362 STEARMAN CT #20
Utilities
BB/HS Internet Available, Cable Available, Electricity Available
Water Access
Pond
Water Access YN
1
Water Source
Public
Waterfront YN
false
Zoning
P-D
Neighborhood Map
Popup

Property Photos
Listing Photo
Listing Photo
Listing Photo
Listing Photo
Listing Photo
Listing Photo
Listing Photo
Listing Photo
Listing Photo
Listing Photo
Listing Photo
Listing Photo
Listing Photo
Listing Photo
Listing Photo
Listing Photo
Listing Photo
Listing Photo
Listing Photo
Listing Photo
Listing Photo
Listing Photo
Listing Photo
Listing Photo
Listing Photo
Listing Photo
Listing Photo
Listing Photo
Listing Photo
Listing Photo
Listing Photo
Listing Photo
Listing Photo
Listing Photo
Listing Photo
Listing Photo
Listing Photo
Listing Photo
Listing Photo
Listing Photo
Listing Photo
Listing Photo
Listing Photo
Listing Photo
Listing Photo
Listing Photo
Listing Photo
Listing Photo
Listing Photo
Listing Photo
Listing Photo
Listing Photo
Listing Photo
Listing Photo
Listing Photo
Listing Photo
Listing Photo
Listing Photo
Listing Photo
Listing Photo
Listing Photo
Listing Photo
Listing Photo
Listing Photo
Listing Photo
Listing Photo
Listing Photo
Listing Photo
Listing Photo
Listing Photo
Listing Photo
Listing Photo
Listing Photo
Listing Photo
Listing Photo
Listing Photo
Listing Photo
Listing Photo
Listing Photo
Listing Photo
Listing Photo
Listing Photo
Listing Photo
Listing Photo
Listing Photo
Listing Photo
Listing Photo
Listing Photo
Listing Photo
Listing Photo

MLS #MFRO6362939 Listing courtesy of Re/max 200 Realty provided by Stellar MLS.

Similar Listings

$228,900
3244 Candle Ridge Drive
Orlando
2BR/2BA
| Active
$228,900
5963 Westgate Drive
Orlando
2BR/2BA
| Active
$229,000
12556 Floridays Resort Drive
Orlando
2BR/2BA
| Active
$229,000
5285 Cypress Court
Orlando
2BR/2BA
| Active



All listing information is deemed reliable but not guaranteed and should be independently verified through personal inspection by appropriate professionals. Listings displayed on this website may be subject to prior sale or removal from sale; availability of any listing should always be independent verified. Listing information is provided for consumer personal, non-commercial use, solely to identify potential properties for potential purchase; all other use is strictly prohibited and may violate relevant federal and state law. The source of the listing data is as follows: Stellar MLS (updated 3/16/26 8:02 PM) |

Listing Search



Translate Tool

Featured Listings
Orlando Real Estate
$615,000
4 BED
2 BATH
This is the pool home you’ve been waiting for! Completely renovated and incredibly maintained, 4-bedroom split floor pla... Read More
Orlando Real Estate
$634,500
3 BED
2 BATH
Lakefront renovated townhome in the highly sought after gated community of Phillips Bay, offered fully furnished! Experi... Read More
Orlando Real Estate
$1,175,000
4 BED
4 BATH
Under contract-accepting backup offers. Unmatched Location right behind Orlando’s famed Restaurant Row! Welcome to luxur... Read More
Orlando Real Estate
$1,299,900
6 BED
4 BATH
One or more photo(s) has been virtually staged. AVAILBLE FOR RENT OR SALE. Located in the beautiful, gated community of ... Read More
Orlando Real Estate
$1,225,000
5 BED
4 BATH
*PRICE DROP ALERT. SCHEDULE SHOWING NOW* This exceptional Toll Brothers residence in the guard-gated Royal Cypress Prese... Read More
Orlando Real Estate
$569,000
3 BED
2 BATH
Welcome to this stunning 3-bedroom, 2.5-bath townhome located in the gated community of Sand Lake Sound, one of the most... Read More
Orlando Real Estate
$1,100,000
5 BED
5 BATH
Step into a world of elegance at 7689 Toscana Boulevard in Doctor Phillips. This stylish and modern residence, located w... Read More
Orlando Real Estate
$230,000
2 BED
2 BATH
UNBEATABLE LOCATION. NO COMPROMISES. FULL STOP. Just a little over a mile from Universal Studios Florida, this updated 2... Read More
Orlando Real Estate
$420,000
2 BED
2 BATH
One or more photo(s) has been virtually staged. Located in the heart of Dr. Phillips, this beautifully upgraded townhome... Read More
Orlando Real Estate
$625,000
3 BED
2 BATH
Welcome to your next investment opportunity: a condo you can rent out for income or relax in for your next resort vacati... Read More
Real Estate News
  • Coming soon
Contact Kevin Strawter

Wendy Morris LLC

Licensed in the State of Florida
BK 3146762
16797 Broadwater Avenue
Winter Garden, Florida 34787

Your privacy is our utmost concern. We will never sell your personal information. Privacy Policy
©2026 drphillips.info - all rights reserved. | Site Map