407-990-2746
Menu

1267 Saint Tropez Circle Unit: Unit: GE, Orlando, FL

NEXT
PREV
$415,000

($224/sqft)

List Status: Active
1267 Saint Tropez Circle
Orlando, FL 32806


3 beds
3 baths
1850 living sqft
Top Features
  • Subdivision: Lake Pineloch Village Condo 03
  • Built in  1984
  • Condominium
Description
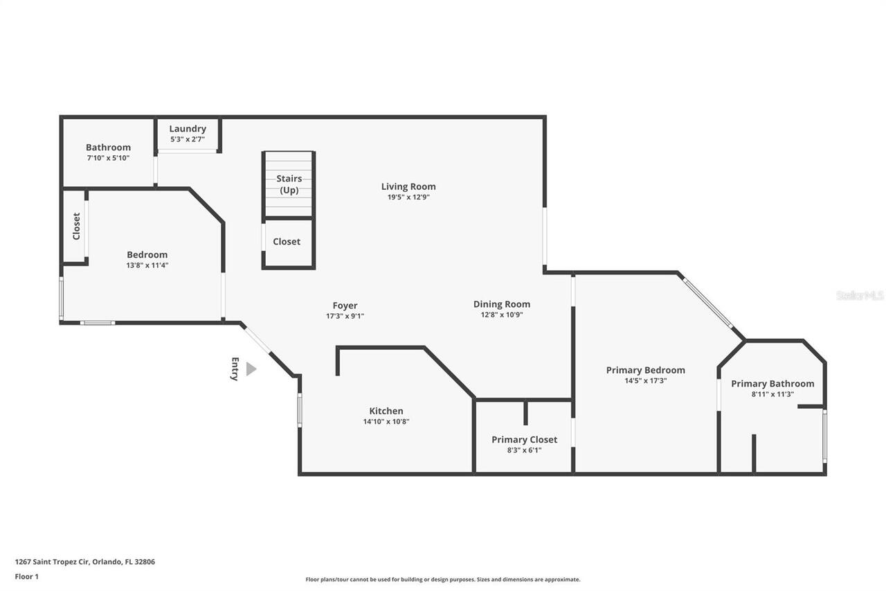
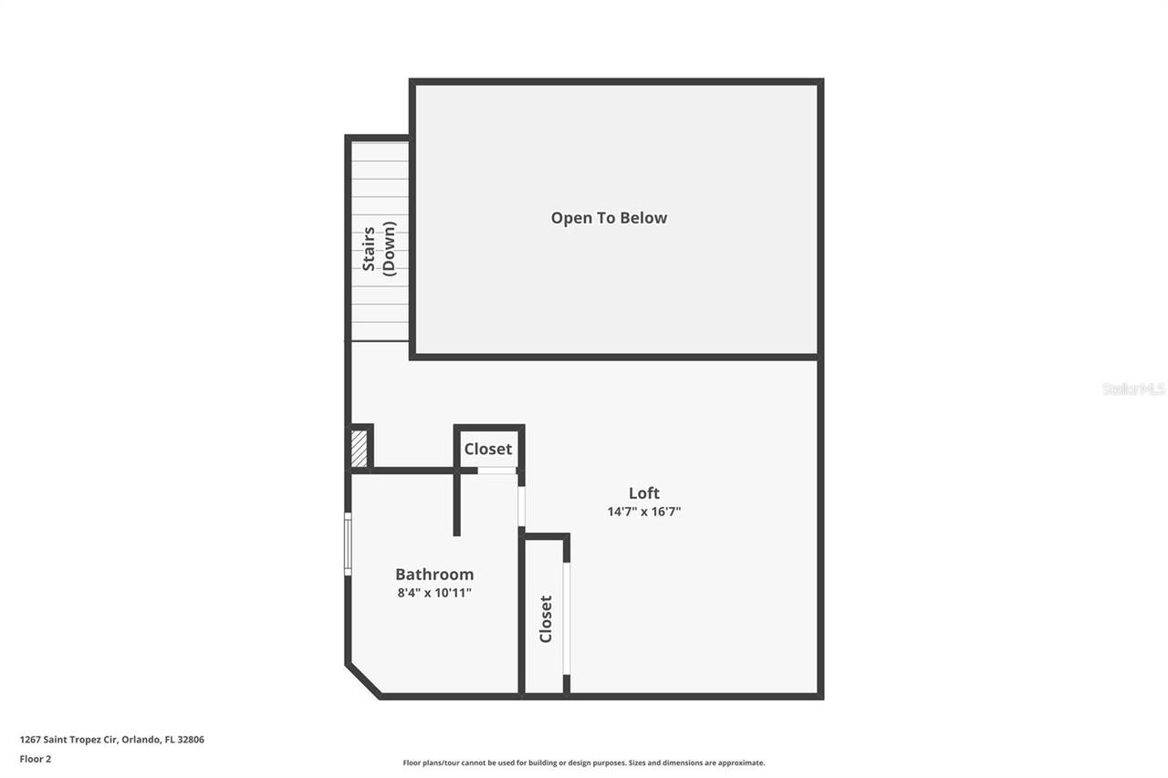
Just south of Downtown, inside the 24-hour guard-gated Lake Pineloch Village, this is one of the rare nearly 1,900 sq. ft. residences — and it lives big. Step inside and the two-story wall of floor-to-ceiling windows steals the show. Natural light pours in through the oak canopy, and the living room feels architectural and open in a way most units simply don’t. The kitchen sits at the center of it all — full-height shaker cabinetry, quartz countertops, Kenmore Elite Series® stainless appliances, recessed lighting, and a wide peninsula breakfast bar that actually works for everyday life. Primary suite downstairs with vaulted ceilings, walk-in closet, and a spacious en-suite featuring dual vanities and a large glass shower with signature arched window detail. A secondary bedroom and full bath complete the main level. Upstairs? A true loft. Large enough to function as a second primary suite, office, or media room, plus a full bath and closet. Real square footage. Real flexibility. Wood flooring through the main living areas and bedrooms. Three full baths. In-unit laundry. Covered carport. Private balcony with storage. And then the community — two pools (one quiet, one resort-style on the lake), private boat ramp and docks on skiable Lake Pineloch, tennis and pickleball courts, mature oaks everywhere, and sunset views that never get old. Zoned for Blankner K-8 and Boone (Go Braves). Minutes to SoDo and Downtown — but once you’re inside the gates, it feels worlds away. Rare size. Rare layout. Rare opportunity. Plus a brand new tile roof.
Property Details
Additional Information
Additional Lease Restrictions
Verify with HOA. Only a limited number of units can be leased at a time, check with the on site office and speak with the manager.
Additional Parcels YN
false
Additional Water Information
Boat ramp within the community and also a dock you can sign up for if open
Alternate Key Folio Num
01-23-29-4974-07-267
Amenities Additional Fees
Five boat slips are available for $100.00 per year. If there are more requests than the number available, they will be assigned by lottery at the Annual Meeting. If vacated during the year, space will be filled on a first-come, first-served basis.
Appliances
Dishwasher, Disposal, Microwave, Range, Refrigerator
Approval Process
Please reach out to the association for the application process. Buyer application must be submitted at least 20 days before the closing date. The application fee is $50.00, and the Property Access Device fee is $50.00
Architectural Style
Mediterranean
Association Amenities
Cable TV, Clubhouse, Gated, Pool, Security, Spa/Hot Tub, Tennis Court(s)
Association Approval Required YN
1
Association Email
office@lakepinelochvillage.com
Association Fee
667
Association Fee Frequency
Monthly
Association Fee Includes
Guard - 24 Hour, Cable TV, Common Area Taxes, Pool, Escrow Reserves Fund, Internet, Maintenance Structure, Maintenance Grounds, Management, Pest Control, Private Road, Recreational Facilities, Security
Association Fee Requirement
Required
Association URL
https://lakepinelochvillage.com/
Association YN
true
Available For Lease YN
1
Bathrooms Total Integer
3
Building Area Source
Public Records
Building Area Total
1850
Building Area Total Srch SqM
171.87
Building Area Units
Square Feet
Calculated List Price By Calculated SqFt
224.32
Carport Spaces
1
Carport YN
true
Community Features
Association Recreation - Owned, Buyer Approval Required, Clubhouse, Community Mailbox, Deed Restrictions, Gated Community - Guard, Irrigation-Reclaimed Water, Pool, Sidewalks, Special Community Restrictions, Tennis Court(s), Street Lights
Construction Materials
Block, Concrete, Stucco
Cooling
Central Air
Country
US
Cumulative Days On Market
61
Current Price
415000.00
Direction Faces
Southeast
Elementary School
Blankner Elem
Exterior Features
Courtyard, Lighting, Private Entrance, Sidewalk, Sliding Doors
Fireplace YN
false
Flood Zone Code
X
Flood Zone Date
2009-09-25
Flood Zone Panel
12095C0265F
Floor Number
1
Flooring
Carpet, Tile, Wood
Foundation Details
Slab
Furnished
Unfurnished
Garage YN
false
Heating
Central, Electric
High School
Boone High
Homestead YN
1
Interior Features
Ceiling Fans(s), High Ceilings, Kitchen/Family Room Combo, Living Room/Dining Room Combo, Open Floorplan, Primary Bedroom Main Floor, Solid Surface Counters, Solid Wood Cabinets, Split Bedroom, Stone Counters, Thermostat, Walk-In Closet(s)
Internet Address Display YN
true
Internet Automated Valuation Display YN
false
Internet Consumer Comment YN
false
Internet Entire Listing Display YN
true
Laundry Features
Electric Dryer Hookup, Inside, Laundry Closet, Washer Hookup
Lease Restrictions YN
1
Levels
Two
List AOR
Orlando Regional
Living Area Meters
171.87
Living Area Source
Public Records
Living Area Units
Square Feet
Lot Features
City Limits, Landscaped, Sidewalk, Paved, Private
Lot Size Acres
0.24
Lot Size Square Feet
10531
Lot Size Square Meters
978
Middle Or Junior School
Blankner School (K-8)
Minimum Lease
8-12 Months
Modification Timestamp
2026-04-21T16:09:13.223Z
Monthly HOA Amount
667.00
New Construction YN
false
Num Times per Year
1
Number Of Pets
2
Occupant Type
Owner
Other Equipment
Irrigation Equipment, Private Entrance
Ownership
Condominium
Parcel Number
01-23-29-4974-07-267
Patio And Porch Features
Covered, Front Porch
Pet Restrictions
See governing docs and Rules + Regs, Section D. Pet restrictions are to the best of the knowledge of the homeowner and listing agent. Buyers with pets are responsible for confirming by contacting the HOA.
Pet Size
Large (61-100 Lbs.)
Pets Allowed
Cats OK, Dogs OK, Number Limit, Size Limit
Pool Private YN
false
Postal Code Plus 4
5559
Previous List Price
425000
Price Change Timestamp
2026-04-21T16:08:10.000Z
Public Survey Range
29
Public Survey Section
01
RATIO Current Price By Calculated SqFt
224.32
Realtor Info
Floor Plan Available, See Attachments
Road Responsibility
Private Maintained Road
Road Surface Type
Asphalt
Roof
Tile
Room Count
9
Security Features
Smoke Detector(s)
Senior Community YN
false
Sewer
Public Sewer
Showing Requirements
Sentri Lock Box, Appointment Only, Call Listing Agent 2, ShowingTime
Status Change Timestamp
2026-02-19T19:27:14.000Z
Stories Total
2
Tax Annual Amount
5805
Tax Block
7
Tax Book Number
8-98
Tax Legal Description
LAKE PINELOCH VILLAGE NUMBER 3 CONDO CB8/98 BLDG 7 UNIT 1267
Tax Lot
267
Tax Year
2024
Total Annual Fees
8004.00
Total Monthly Fees
667.00
Township
23
Universal Property Id
US-12095-N-012329497407267-S-GE
Unparsed Address
1267 SAINT TROPEZ CIR #GE
Utilities
BB/HS Internet Available, Cable Available, Electricity Connected, Phone Available, Public, Sewer Connected, Water Connected
Vegetation
Mature Landscaping, Trees/Landscaped
Water Access
Lake
Water Access YN
1
Water Body Name
LAKE PINELOCH & LAKE WILASARA
Water Extras
Assigned Boat Slip, Fishing Pier, Seawall - Concrete, Skiing Allowed
Water Extras YN
1
Water Source
Public
Waterfront YN
false
Zoning
R-3B
Neighborhood Map
Popup

Property Photos
Listing Photo
Listing Photo
Listing Photo
Listing Photo
Listing Photo
Listing Photo
Listing Photo
Listing Photo
Listing Photo
Listing Photo
Listing Photo
Listing Photo
Listing Photo
Listing Photo
Listing Photo
Listing Photo
Listing Photo
Listing Photo
Listing Photo
Listing Photo
Listing Photo
Listing Photo
Listing Photo
Listing Photo
Listing Photo
Listing Photo
Listing Photo
Listing Photo
Listing Photo
Listing Photo
Listing Photo
Listing Photo
Listing Photo
Listing Photo
Listing Photo
Listing Photo
Listing Photo
Listing Photo
Listing Photo
Listing Photo
Listing Photo
Listing Photo
Listing Photo
Listing Photo
Listing Photo
Listing Photo
Listing Photo
Listing Photo
Listing Photo
Listing Photo
Listing Photo
Listing Photo
Listing Photo
Listing Photo
Listing Photo
Listing Photo
Listing Photo
Listing Photo
Listing Photo
Listing Photo
Listing Photo
Listing Photo
Listing Photo
Listing Photo
Listing Photo
Listing Photo
Listing Photo
Listing Photo
Listing Photo
Listing Photo
Listing Photo
Listing Photo
Listing Photo
Listing Photo
Listing Photo
Listing Photo
Listing Photo
Listing Photo

MLS #MFRO6373210 Listing courtesy of Homevest Realty provided by Stellar MLS.

Similar Listings

$374,900
9454 Silver Buttonwood Street
Orlando
3BR/3BA
| Active
$375,000
3809 Needles Drive
Orlando
3BR/3BA
| Active
$375,000
141 S Hiawassee Road
Orlando
3BR/3BA
| Active
$398,900
8850 Pine Bay Court
Orlando
3BR/3BA
| Active



All listing information is deemed reliable but not guaranteed and should be independently verified through personal inspection by appropriate professionals. Listings displayed on this website may be subject to prior sale or removal from sale; availability of any listing should always be independent verified. Listing information is provided for consumer personal, non-commercial use, solely to identify potential properties for potential purchase; all other use is strictly prohibited and may violate relevant federal and state law. The source of the listing data is as follows: Stellar MLS (updated 4/22/26 12:52 AM) |

Listing Search



Translate Tool

Featured Listings
Orlando Real Estate
$500,000
3 BED
2 BATH
Location, Location, Location! Quite possibly the best lot and location within the community, welcome home to your highly... Read More
Orlando Real Estate
$514,900
3 BED
3 BATH
An unparalleled opportunity awaits with this short-term rental approved 3-story townhome ideally located directly across... Read More
Orlando Real Estate
$1,179,000
4 BED
4 BATH
NEW ROOF PRIOR TO CLOSING + UPDATED DRAIN FIELD PRIOR TO CLOSING — FULLY PREPARED FOR TODAY’S MARKET! PRIVATE ESTATE LIV... Read More
Orlando Real Estate
$525,000
3 BED
2 BATH
One or more photo(s) has been virtually staged. Welcome home to this beautifully updated 3-bedroom, 2-bath villa located... Read More
Orlando Real Estate
$710,000
4 BED
3 BATH
Under contract-accepting backup offers. Welcome to a beautifully maintained four-bedroom, three-bath pool home located i... Read More
Orlando Real Estate
$489,000
4 BED
2 BATH
***THIS NEW PRICE POINT CHANGES EVERYTHING. MOTIVATED SELLER*** Schedule your visit immediately. Experience the perfect ... Read More
Orlando Real Estate
$1,299,900
6 BED
4 BATH
One or more photo(s) has been virtually staged. AVAILBLE FOR RENT OR SALE. Located in the beautiful, gated community of ... Read More
Orlando Real Estate
$574,900
3 BED
2 BATH
Under contract-accepting backup offers. What is Webster's definition of an "exceptionally convenient location", well it ... Read More
Orlando Real Estate
$449,900
3 BED
2 BATH
Under contract-accepting backup offers. This is the once in a lifetime opportunity to Start from Scratch on your very ow... Read More
Orlando Real Estate
$575,000
3 BED
2 BATH
BACK ON MARKET. PRICE REDUCTION OF $20,000 TO ENCOURAGE QUICK SALE! NEW SEPTIC TANK! Welcome to your private oasis in Gr... Read More
Real Estate News
  • Coming soon
Contact Kevin Strawter

Wendy Morris LLC

Licensed in the State of Florida
BK 3146762
16797 Broadwater Avenue
Winter Garden, Florida 34787

Your privacy is our utmost concern. We will never sell your personal information. Privacy Policy
©2026 drphillips.info - all rights reserved. | Site Map