407-990-2746
Menu

12006 Sawgrass Reserve Boulevard, Orlando, FL

NEXT
PREV
$770,000

($206/sqft)

List Status: Active
12006 Sawgrass Reserve Boulevard
Orlando, FL 32824


5 beds
3 baths
3740 living sqft
Top Features
  • Frontage: Pond
  • Subdivision: Reserve/sawgrass Ph 1
  • Built in  2016
  • Single Family Residence
Description
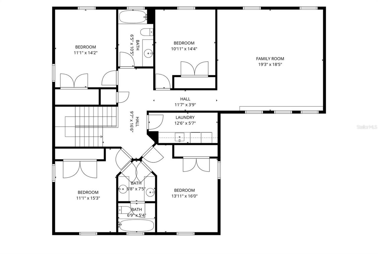
Located in the desirable Sawgrass Reserve community, this 2016 residence built by AVEX Homes was originally showcased as the neighborhood’s model home, used to introduce and market the community during its development. As the original model, the home features thoughtful design elements and has been meticulously maintained by its one and only owner since it was built. The kitchen is designed for both everyday living and entertaining, featuring an oversized island, upgraded cabinetry, and stainless steel appliances. The primary suite is conveniently located on the first floor, thoughtfully positioned to create a private and comfortable retreat within the home. Upstairs features a versatile loft that functions as a secondary living area, along with additional bedrooms and a convenient Jack & Jill bathroom layout, creating a functional and flexible second floor living space. The property also includes solar panels for added energy efficiency and a backyard that captures beautiful Florida sunset views, creating the perfect setting to unwind at the end of the day. Residents of Sawgrass Reserve enjoy low HOA fees and community amenities. Ideally positioned near the highly sought after Lake Nona area with convenient access to both Florida State Road 417 and Florida’s Turnpike, offering seamless connectivity to shopping, dining, major employment hubs, and located less than 20 minutes from Orlando International Airport!
Property Details
Additional Information
Additional Lease Restrictions
Buyer to verify directly with the HOA
Additional Parcels YN
false
Additional Rooms
Den/Library/Office, Formal Dining Room Separate
Alternate Key Folio Num
19-24-30-7300-00-330
Amenities Additional Fees
Buyer to verify directly with the HOA
Appliances
Built-In Oven, Cooktop, Dryer, Microwave, Range, Refrigerator, Washer
Approval Process
Buyer to verify directly with the HOA
Association Email
mangomas@artemislifestyles.com
Association Fee
235
Association Fee Frequency
Quarterly
Association Fee Requirement
Required
Association URL
www.artemislifestyles.comc
Association YN
true
Attached Garage YN
true
Available For Lease YN
1
Bathrooms Total Integer
4
Building Area Source
Public Records
Building Area Total
4954
Building Area Total Srch SqM
460.24
Building Area Units
Square Feet
Calculated List Price By Calculated SqFt
205.88
Carport YN
false
Community Features
Dog Park, Playground, Pool, Sidewalks
Construction Materials
Block, Stucco
Cooling
Central Air
Country
US
Cumulative Days On Market
5
Current Price
770000.00
Direction Faces
East
Elementary School
Wetherbee Elementary School
Exterior Features
Lighting, Rain Gutters, Sidewalk, Sliding Doors
Fireplace YN
false
Flood Zone Code
X
Flood Zone Date
2009-09-25
Flood Zone Panel
12095C0440F
Flooring
Tile
Foundation Details
Slab
Furnished
Unfurnished
Garage Spaces
2
Garage YN
true
Green Energy Generation
Solar
Heating
Central
High School
Cypress Creek High
Interior Features
Eat-in Kitchen, Kitchen/Family Room Combo, Primary Bedroom Main Floor, Walk-In Closet(s)
Internet Address Display YN
true
Internet Automated Valuation Display YN
false
Internet Consumer Comment YN
false
Internet Entire Listing Display YN
true
Laundry Features
Laundry Room
Lease Restrictions YN
1
Levels
Two
List AOR
Orlando Regional
Living Area Meters
347.46
Living Area Source
Public Records
Living Area Units
Square Feet
Lot Size Acres
0.19
Lot Size Square Feet
8400
Lot Size Square Meters
780
Middle Or Junior School
South Creek Middle
Minimum Lease
8-12 Months
Modification Timestamp
2026-03-11T13:43:09.937Z
Monthly HOA Amount
78.33
New Construction YN
false
Occupant Type
Owner
Ownership
Fee Simple
Parcel Number
19-24-30-7300-00-330
Pet Restrictions
Buyer to verify directly with the HOA
Pets Allowed
Yes
Pool Private YN
false
Postal Code Plus 4
7316
Public Survey Range
30
Public Survey Section
19
RATIO Current Price By Calculated SqFt
205.88
Realtor Info
As-Is, See Attachments
Road Surface Type
Paved
Roof
Shingle
Room Count
4
Senior Community YN
false
Sewer
Public Sewer
Showing Requirements
Appointment Only, Listing Agent Must Accompany, ShowingTime
Status Change Timestamp
2026-03-06T22:38:16.000Z
Tax Annual Amount
9881
Tax Block
00
Tax Book Number
80/126
Tax Legal Description
RESERVE AT SAWGRASS - PHASE 1 80/126 LOT33
Tax Lot
33
Tax Year
2024
Total Acreage
0 to less than 1/4
Total Annual Fees
940.00
Total Monthly Fees
78.33
Township
24
Universal Property Id
US-12095-N-192430730000330-R-N
Unparsed Address
12006 SAWGRASS RESERVE BLVD
Utilities
Public
Water Source
Public
Water View
Pond
Water View YN
1
Waterfront YN
true
Zoning
P-D
Neighborhood Map
Popup

Property Photos
Listing Photo
Listing Photo
Listing Photo
Listing Photo
Listing Photo
Listing Photo
Listing Photo
Listing Photo
Listing Photo
Listing Photo
Listing Photo
Listing Photo
Listing Photo
Listing Photo
Listing Photo
Listing Photo
Listing Photo
Listing Photo
Listing Photo
Listing Photo
Listing Photo
Listing Photo
Listing Photo
Listing Photo
Listing Photo
Listing Photo
Listing Photo
Listing Photo
Listing Photo
Listing Photo
Listing Photo
Listing Photo
Listing Photo
Listing Photo
Listing Photo
Listing Photo
Listing Photo
Listing Photo
Listing Photo
Listing Photo
Listing Photo
Listing Photo
Listing Photo
Listing Photo
Listing Photo
Listing Photo
Listing Photo
Listing Photo
Listing Photo
Listing Photo
Listing Photo
Listing Photo
Listing Photo
Listing Photo
Listing Photo
Listing Photo
Listing Photo
Listing Photo
Listing Photo
Listing Photo
Listing Photo
Listing Photo
Listing Photo
Listing Photo
Listing Photo
Listing Photo
Listing Photo
Listing Photo
Listing Photo
Listing Photo
Listing Photo
Listing Photo
Listing Photo
Listing Photo
Listing Photo
Listing Photo
Listing Photo
Listing Photo
Listing Photo
Listing Photo

MLS #MFRO6386095 Listing courtesy of Real Broker, Llc provided by Stellar MLS.

Similar Listings

$698,999
9361 Pecky Cypress Way
Orlando
5BR/3BA
| Active
$699,999
19509 Sheldon Street
Orlando
5BR/3BA
| Active
$699,999
3243 Palatka Street
Orlando
5BR/3BA
| Active
$705,000
10075 Baywater Breeze Drive
Orlando
5BR/3BA
| Pending



All listing information is deemed reliable but not guaranteed and should be independently verified through personal inspection by appropriate professionals. Listings displayed on this website may be subject to prior sale or removal from sale; availability of any listing should always be independent verified. Listing information is provided for consumer personal, non-commercial use, solely to identify potential properties for potential purchase; all other use is strictly prohibited and may violate relevant federal and state law. The source of the listing data is as follows: Stellar MLS (updated 4/30/26 6:50 AM) |

Listing Search



Translate Tool

Featured Listings
Orlando Real Estate
$699,999
4 BED
3 BATH
PRICED TO SELL! Newly renovated and immaculately updated villa in the gated Bay Ridge community in the Dr Phillips area ... Read More
Orlando Real Estate
$759,000
4 BED
3 BATH
Nestled within the exclusive gated community of Toscana, this stunning Mediterranean-inspired residence offers the perfe... Read More
Orlando Real Estate
$249,900
2 BED
2 BATH
Prime short-term rental opportunity centrally located in Orlando just blocks from the new Epic Universal Park. This beau... Read More
Orlando Real Estate
$134,999
1 BED
1 BATH
Pool view. 1 bedroom Condo suite, Vacation Rental, 1 mile and a half from Disney Springs, Sea World and Convention Cente... Read More
Orlando Real Estate
$1,200,000
4 BED
4 BATH
Welcome to 8059 Leaf Grove Circle, a stunning Mediterranean-style residence located in the highly sought-after Dr. Phill... Read More
Orlando Real Estate
$625,000
3 BED
2 BATH
Absolutely stunning and spacious 3 bedroom 2 story lakefront condo with unmatched water views throughout. Resort style l... Read More
Orlando Real Estate
$145,000
1 BED
1 BATH
Excelent unit in a perfect location, close to Universal Studios and Epic Universal Park.Available for AIRBNB and VRBO ex... Read More
Orlando Real Estate
$499,000
3 BED
2 BATH
Beautiful 3-Bedroom, 2-Bath Home in Dr. Phillips! Located in one of Orlando’s most desirable areas, home features an ope... Read More
Orlando Real Estate
$769,000
4 BED
3 BATH
Location, Location, Location. Nestled on a quiet cul-de-sac in the highly desirable Diamond Cove community, this beautif... Read More
Orlando Real Estate
$698,999
5 BED
3 BATH
One or more photo(s) has been virtually staged. One or more photo(s) has been virtually staged. Welcome to Cypress Chase... Read More
Real Estate News
  • Coming soon
Contact Kevin Strawter

Wendy Morris LLC

Licensed in the State of Florida
BK 3146762
16797 Broadwater Avenue
Winter Garden, Florida 34787

Your privacy is our utmost concern. We will never sell your personal information. Privacy Policy
©2026 drphillips.info - all rights reserved. | Site Map