407-990-2746
Menu

10061 Ballast Drive, Orlando, FL

NEXT
PREV
$1,164,535

($376/sqft)

List Status: Active
10061 Ballast Drive
Orlando, FL 32827


4 beds
3 baths
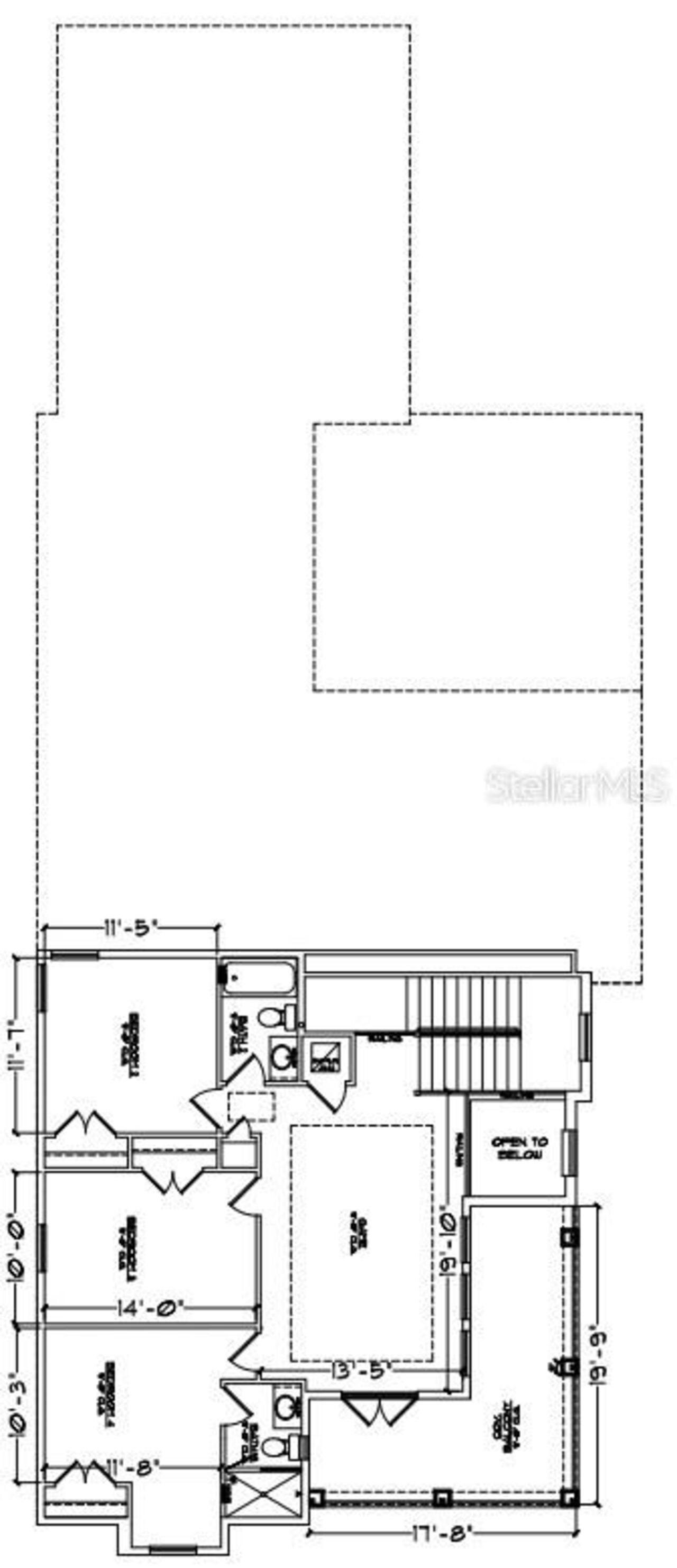
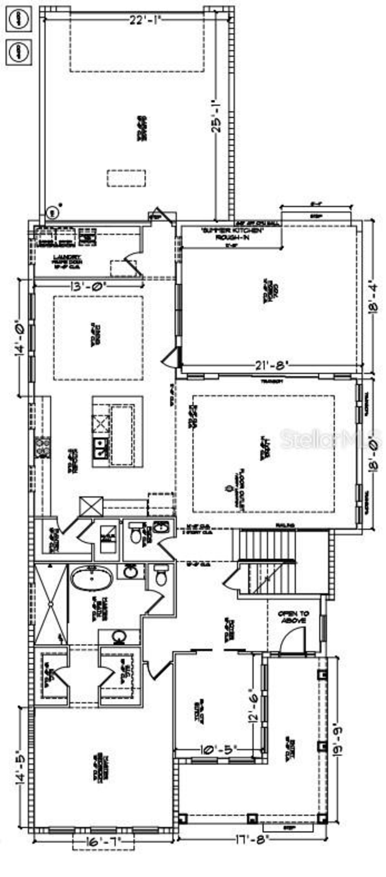
3098 living sqft
Top Features
  • Subdivision: Laureate Park
  • Built in  2025
  • Single Family Residence
Description
Move-In Ready! The Fiji: A Masterclass in Modern Luxury and Effortless Living. Welcome to The Fiji. This move-in-ready residence means no waiting, just the opportunity to step straight into a lifestyle where every day feels like a private getaway. Offering 3,100 square feet of beautifully designed living space, The Fiji artfully blends sophistication, flexibility, and warmth created for those who love to entertain as much as they love to unwind. With four bedrooms, three-and-a-half baths, and spaces that flow with purpose, The Fiji transforms daily life into something extraordinary. Step through the grand foyer into a light-filled living area that opens seamlessly to the outdoors. Expansive sliding glass doors invite the breeze in and extend your living space to a covered lanai, ideal for alfresco dining, morning coffee, or sunset gatherings under the Florida sky. At the center of it all, the gourmet kitchen shines as both a showpiece and a chef’s dream, featuring premium appliances, a walk-in pantry, and a statement kitchen island perfect for serving, socializing, or sipping wine while dinner simmers. The adjoining dining area creates an inviting setting for casual family meals or elegant evenings with friends. The first-floor primary suite is a sanctuary of calm that is tucked away for privacy and styled for indulgence. Dual walk-in closets and a spa-inspired bath with dual vanities, a soaking tub, and a glass-enclosed shower turn everyday routines into restorative rituals. Nearby, a versatile flex room adapts effortlessly to your needs as a home office, study, or reading lounge. Upstairs, family and friends will love three spacious bedrooms and a generous game room made for movie nights, laughter, and lazy weekends. Designed with comfort and efficiency in mind, The Fiji includes high-performance Low-E windows and a hybrid hot water heater, enhancing year-round comfort while helping reduce energy costs. The Fiji isn’t just a home. It’s where design, comfort, and c
Property Details
Additional Information
Additional Lease Restrictions
Contact HOA
Additional Parcels YN
false
Alternate Key Folio Num
312431484301560
Appliances
Built-In Oven, Cooktop, Dishwasher, Electric Water Heater, Exhaust Fan, Microwave
Approval Process
Contact HOA
Association Approval Required YN
1
Association Email
laureatepark@artemislifestyles.com
Association Fee
515
Association Fee Frequency
Quarterly
Association Fee Requirement
Required
Association URL
laureateparkhoa.com
Association YN
true
Attached Garage YN
true
Available For Lease YN
1
Bathrooms Total Integer
4
Builder License Number
BLD2025-13014
Builder Model
Fiji
Builder Name
ICI Homes
Building Area Source
Builder
Building Area Total
4530
Building Area Total Srch SqM
420.85
Building Area Units
Square Feet
CDDYN
1
Calculated List Price By Calculated SqFt
375.90
Carport YN
false
Construction Materials
Block, Cement Siding, Stucco, Frame
Cooling
Central Air
Country
US
Cumulative Days On Market
99
Current Price
1164535.00
Direction Faces
South
Elementary School
Laureate Park Elementary
Fireplace YN
false
Flood Zone Code
X
Flooring
Carpet, Luxury Vinyl, Tile
Foundation Details
Slab
Garage Spaces
2
Garage YN
true
Heating
Central, Electric, Heat Pump
High School
Lake Nona High
Interior Features
Crown Molding
Internet Address Display YN
true
Internet Automated Valuation Display YN
true
Internet Consumer Comment YN
false
Internet Entire Listing Display YN
true
Laundry Features
Inside
Lease Restrictions YN
1
Levels
Two
List AOR
Suncoast Tampa
Living Area Meters
287.81
Living Area Source
Builder
Living Area Units
Square Feet
Lot Size Acres
0.17
Lot Size Square Feet
7286
Lot Size Square Meters
677
Middle Or Junior School
Lake Nona Middle School
Minimum Lease
1-2 Years
Modification Timestamp
2026-03-22T18:06:18.412Z
Monthly HOA Amount
171.67
New Construction YN
true
Num Of Own Years Prior To Lease
1
Occupant Type
Vacant
Other Equipment
Irrigation Equipment
Ownership
Fee Simple
Parcel Number
31-24-31-4843-01-560
Pet Restrictions
Contact HOA
Pets Allowed
Yes
Pool Private YN
false
Previous List Price
1195000
Price Change Timestamp
2026-03-07T16:38:46.000Z
Projected Completion Date
2025-11-20T00:00:00.000
Property Condition
Completed
Public Survey Range
31
Public Survey Section
31
RATIO Current Price By Calculated SqFt
375.90
Road Surface Type
Asphalt
Roof
Shingle
Room Count
3
Senior Community YN
false
Sewer
Public Sewer
Showing Requirements
Appointment Only, Call Before Showing, Contact Call Center
Status Change Timestamp
2025-12-13T13:38:08.000Z
Tax Annual Amount
4059.71
Tax Block
00
Tax Book Number
4843
Tax Legal Description
LAUREATE PARK PARCEL N-2 PHASE 1 111/53LOT 156
Tax Lot
156
Tax Other Annual Assessment Amount
2144
Tax Year
2024
Total Acreage
0 to less than 1/4
Total Annual Fees
2060.00
Total Monthly Fees
171.67
Township
24
Universal Property Id
US-12095-N-312431484301560-R-N
Unparsed Address
10061 BALLAST DR
Utilities
Cable Available, Electricity Connected, Sewer Connected, Water Connected
Water Source
Public
Waterfront YN
false
Years Of Owner Prior To Leasing Req YN
1
Zoning
PD/AN
Neighborhood Map
Popup

Property Photos
Listing Photo
Listing Photo
Listing Photo
Listing Photo
Listing Photo
Listing Photo
Listing Photo
Listing Photo
Listing Photo
Listing Photo
Listing Photo
Listing Photo
Listing Photo
Listing Photo
Listing Photo
Listing Photo
Listing Photo
Listing Photo
Listing Photo
Listing Photo
Listing Photo
Listing Photo
Listing Photo
Listing Photo
Listing Photo
Listing Photo
Listing Photo
Listing Photo
Listing Photo
Listing Photo
Listing Photo
Listing Photo
Listing Photo
Listing Photo
Listing Photo
Listing Photo
Listing Photo
Listing Photo
Listing Photo
Listing Photo
Listing Photo
Listing Photo
Listing Photo
Listing Photo
Listing Photo
Listing Photo
Listing Photo
Listing Photo
Listing Photo
Listing Photo
Listing Photo
Listing Photo
Listing Photo
Listing Photo
Listing Photo
Listing Photo
Listing Photo
Listing Photo
Listing Photo
Listing Photo
Listing Photo
Listing Photo
Listing Photo
Listing Photo
Listing Photo
Listing Photo
Listing Photo
Listing Photo
Listing Photo
Listing Photo
Listing Photo
Listing Photo
Listing Photo
Listing Photo
Listing Photo
Listing Photo
Listing Photo
Listing Photo
Listing Photo
Listing Photo
Listing Photo
Listing Photo
Listing Photo
Listing Photo
Listing Photo
Listing Photo
Listing Photo
Listing Photo
Listing Photo
Listing Photo
Listing Photo
Listing Photo
Listing Photo
Listing Photo
Listing Photo
Listing Photo
Listing Photo
Listing Photo

MLS #MFRO6360140 Listing courtesy of Ici Select Realty provided by Stellar MLS.

Similar Listings

$1,050,000
1406 Nolan Court
Orlando
4BR/3BA
| Active
$1,050,000
10814 Citron Oaks Drive
Orlando
4BR/3BA
| Active
$1,088,000
7621 Orange Tree Lane
Orlando
4BR/3BA
| Active
$1,099,000
716 E Pine Street
Orlando
4BR/3BA
| Pending



All listing information is deemed reliable but not guaranteed and should be independently verified through personal inspection by appropriate professionals. Listings displayed on this website may be subject to prior sale or removal from sale; availability of any listing should always be independent verified. Listing information is provided for consumer personal, non-commercial use, solely to identify potential properties for potential purchase; all other use is strictly prohibited and may violate relevant federal and state law. The source of the listing data is as follows: Stellar MLS (updated 3/22/26 5:51 PM) |

Listing Search



Translate Tool

Featured Listings
Orlando Real Estate
$1,175,000
4 BED
4 BATH
BACK ON MARKET DUE TO BUYERS’ PLANS CHANGING. Unmatched Location right behind Orlando’s famed Restaurant Row! Welcome to... Read More
Orlando Real Estate
$1,490,000
5 BED
4 BATH
Welcome to Bay Hill, a completely renovated home, new roof, AC, new kitchen cabinets with quartz counters, charcoal appl... Read More
Orlando Real Estate
$1,100,000
5 BED
5 BATH
Step into a world of elegance at 7689 Toscana Boulevard in Doctor Phillips. This stylish and modern residence, located w... Read More
Orlando Real Estate
$945,000
3 BED
3 BATH
One or more photo(s) has been virtually staged. This Pulte-built home in Dr. Phillips offered UNDER APPRAISED VALUE, pre... Read More
Orlando Real Estate
$615,000
4 BED
2 BATH
This is the pool home you’ve been waiting for! Completely renovated and incredibly maintained, 4-bedroom split floor pla... Read More
Orlando Real Estate
$795,000
5 BED
3 BATH
One or more photo(s) has been virtually staged. Welcome to 6956 Lucca Street, located in the highly desirable gated comm... Read More
Orlando Real Estate
$995,000
4 BED
2 BATH
Exceptional single story Toll Brothers home with over $100,000 in upgrades done by current owners, located in the highly... Read More
Orlando Real Estate
$1,025,000
4 BED
3 BATH
Welcome to this exceptional custom residence in the exclusive Venezia enclave, a quiet and desirable pocket community in... Read More
Orlando Real Estate
$1,000,000
5 BED
4 BATH
PRICE REDUCED, Provence at Lake Sheen. 4068/5019 SqFT 5-bedroom, 4-bath executive SCREENED HEATED SALT PURIFIED POOL hom... Read More
Orlando Real Estate
$1,049,000
4 BED
4 BATH
Welcome to 5314 Shadywood Lane, a private Dr. Phillips estate where thoughtful design, expansive scale, and modern infra... Read More
Real Estate News
  • Coming soon
Contact Kevin Strawter

Wendy Morris LLC

Licensed in the State of Florida
BK 3146762
16797 Broadwater Avenue
Winter Garden, Florida 34787

Your privacy is our utmost concern. We will never sell your personal information. Privacy Policy
©2026 drphillips.info - all rights reserved. | Site Map